Vuokrataan toimistotilat - Helsinki
Mannerheimintie 15, Töölö, 00260 Helsinki #10806939
Siistiä toimistotilaa Helsingissä, Töölönlahden rannalla.
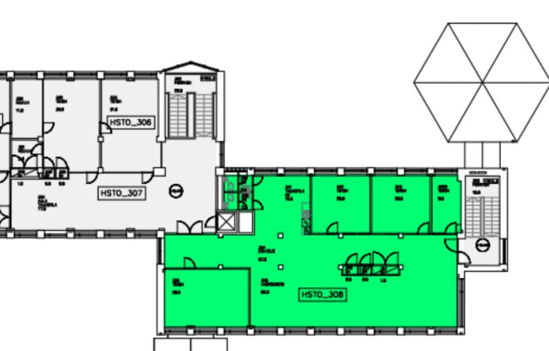
Tämä 236 m² toimistotila sijaitsee kiinteistön 3. kerroksessa. Toimisto on tyylikkäästi remontoitu, ja se koostuu huoneista, avotilasta sekä omista keittiö- ja wc-tiloista.
Mannerheimintie 15 B eli Sakkaroosi sijaitsee Suomen Kansallisoopperan vieressä, entisen Töölön sokeritehtaan alueella. Liikenneyhteydet ovat erinomaiset sekä omalla autolla että julkisilla liikennevälineillä. Autopaikkoja on mahdollista vuokrata pihalta ja hallista. Helsingin keskustan palvelut ovat lyhyen matkan päässä ja kävelyetäisyydellä on lukuisia lounasravintoloita.
Kysy lisää numerosta 044 723 4700 tai info@bref.fi. Palvelumme on tilanhakijoille ilmainen.
Bureau Real Estate Finland Oy
Lars Sonckin kaari 16, 02600 Espoo
Näytä puhelinnumero
0447234700
Bureau Real Estate Finland Oy
https://www.bref.fi