Vuokrataan toimistotilat - Helsinki
Vuorikatu 20, Keskusta, 00100 Helsinki #10806934
Toimistotilaa Helsingin Kaisaniemessä.
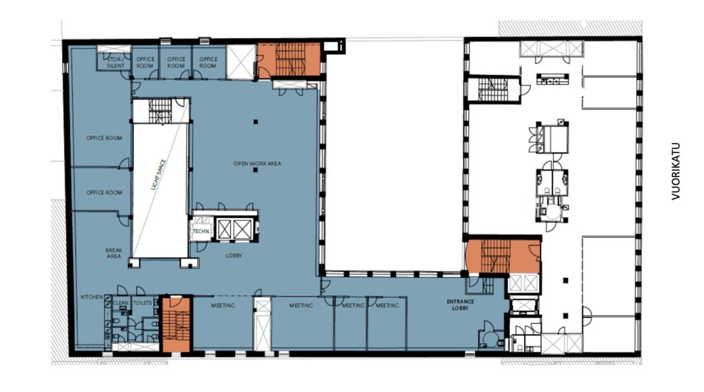
Tämä 645m² toimistotila sijaitsee kiinteistön 4. kerroksessa. Muuttovalmis kaunis moderni toimistotila, joka on optimaalinen noin 40-50 työpisteelle. Tilassa on neuvottelu- ja tiimityötiloja sekä paikkoja avotyöpisteille. Tilasta löytyy myös lounge-alue keittiöineen. Näkymät sisäpihan puolelle. Tila voidaan myös jakaa kahdelle käyttäjälle noin 341m² ja 304m² kokoisiin osiin.
Vuorikatu 20 on toimistokiinteistö, joka sijaitsee helposti saavutettavissa olevalla paikalla Kaisaniemen ja Kluuvin läheisyydessä. Sen tilat on rakennettu niin, että ne ovat helposti muokattavissa vuokralaisen tarpeiden mukaan. Kiinteistö on saneerattu vuonna 2019. Valoa ja avaruutta tiloihin tuo keskellä B-taloa oleva atrium. Lisäksi kiinteistöllä on kodikas sisäpiha.
Tämän arvokiinteistön on suunnitellut arkkitehti Lars Eklund ja rakennuksessa toimi alunperin Tampereen Rohdos (nyk. Tamro). Kiinteistö peruskorjattiin täysin vuonna 2005, jonka jälkeen tilat ovat pitkälti olleet Poliisihallituksen käytössä. Tiloissa on jäähdytys ja tekniikka on nykyvaatimusten mukaista.
Kysy lisää numerosta 044 723 4700 tai info@bref.fi. Palvelumme on tilanhakijoille ilmainen.
Bureau Real Estate Finland Oy
Lars Sonckin kaari 16, 02600 Espoo
Näytä puhelinnumero
0447234700
Bureau Real Estate Finland Oy
https://www.bref.fi