Vuokrataan toimistotilat - Helsinki
Tammasaarenkatu 3, Ruoholahti, 00180 Helsinki #10806859
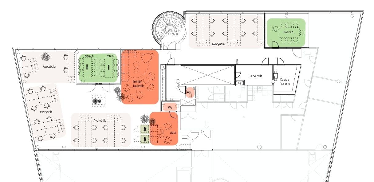
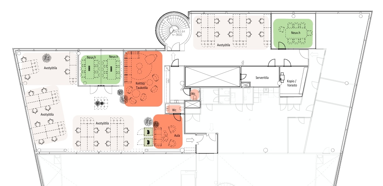
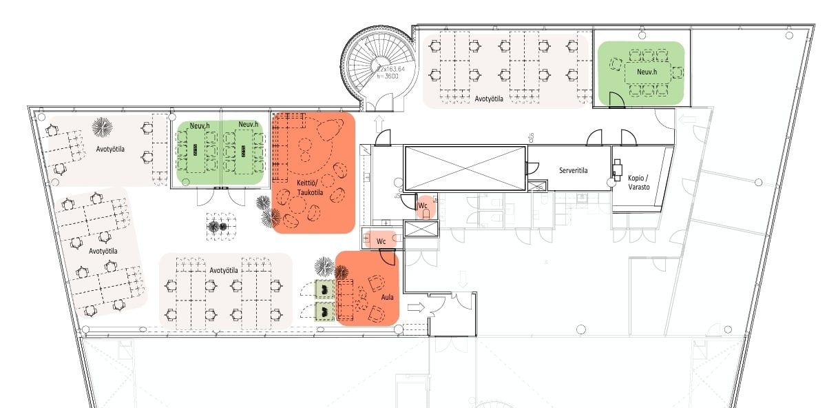
Nyt vapaa muuttovalmis toimisto Ruoholahdesta. Tämä tila koostuu isosta avotilasta sekä työ- ja neuvotteluhuoneista. Lisäksi tilasta löytyy iso keittiö ja wc-tilat.
HTC Pinta on yksi Ruoholahden maamerkeistä. Kaapelitehtaan vieressä ja meren äärellä sijaitseva moderni yrityspuisto tarjoaa kattavat palvelut, kuten kaksi lounasravintolaa, edustussaunan sekä laadukkaat neuvottelu- ja auditoriotilat, jotka mahdollistavat suuretkin tapahtumat.
Toimistot ovat valoisia ja niistä on upeat näkymät merelle. Tilat muuntuvat niin avotoimistoiksi kuin erillisiksi huoneiksikin. Ruoholahteen on loistavat kulkuyhteydet. Metroasema on vain kivenheiton päässä ja läheltä kulkevat monet raitiovaunulinjat. Ruoholahdessa on kattava pyörätieverkosto, ja autoileville on kiinteistön omassa parkkihallissa runsaasti pysäköintitilaa.
Me Croisettella autamme teitä löytämään teille parhaat tilat! Olemme puolueettomia asiantuntijoita ja tunnemme toimitilamarkkinat, talot sekä tilat vankalla kokemuksella. Meillä on välityksessä kaikki toimitilat ja tiedämme niiden alustavat vuokratasot.
Tehtävämme on tehdä toimitilahaustanne onnistunut ja helppo. Saamme palkkiomme kiinteistönomistajalta, joten sinulle palvelumme on täysin maksuton.
Hissi
Croisette Real Estate Partner
Erottajankatu 5 A 6, 00130 Helsinki
Näytä puhelinnumero
+358 400 585 857
Croisette Vuokraus
Näytä puhelinnumero
+358400585857
