Vuokrataan toimistotilat - Helsinki
Itämerenkatu 3, Ruoholahti, 00180 Helsinki #10806857
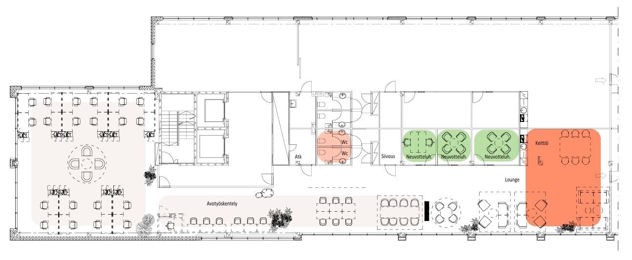
Valoisa toimisto nyt vuokrattavissa Ruoholahdessa. Tässä toimistossa on iso avotila ja muutama pienempi neuvotteluhuone. Lisäksi toimistossa on lounge keittiöllä sekä wc-tilat.
Ruoholahdessa sijaitseva Itämerenkatu 3 tarjoaa modenit toimitilat merellisessä Ruoholahdessa. Tilat taipuvat moneen - tänne voi toteuttaa niin modernin huonetoimiston kuin monitilaympäristönkin yksilöllisten käyttötarpeiden mukaan. Pinnoiltaan ja tekniikaltaan uudistetut tilat valmistuivat 2019 aikana. Kiinteistössä on mm. ravintola ja kuntosali.
Me Croisettella autamme teitä löytämään teille parhaat tilat! Olemme puolueettomia asiantuntijoita ja tunnemme toimitilamarkkinat, talot sekä tilat vankalla kokemuksella. Meillä on välityksessä kaikki toimitilat ja tiedämme niiden alustavat vuokratasot.
Tehtävämme on tehdä toimitilahaustanne onnistunut ja helppo. Saamme palkkiomme kiinteistönomistajalta, joten sinulle palvelumme on täysin maksuton.
Hissi
Croisette Real Estate Partner
Erottajankatu 5 A 6, 00130 Helsinki
Näytä puhelinnumero
+358 400 585 857
Croisette Vuokraus
Näytä puhelinnumero
+358400585857
