Vuokrataan liiketilat - Seinäjoki
Päivölänkatu 2, Pohja, 60120 Seinäjoki #10806786
Siistiä ja valoisaa liiketilaa Seinäjoella, vuonna 2008 valmistuneessa Retail Parkissa.
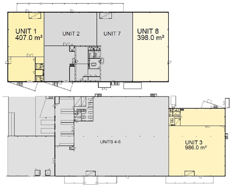
Tämä 474m² tila sijaitsee kiinteistön katutasossa. Pohjakuvassa tila on nimellä UNIT 2. Runsaasti asiakaspaikkoja ja erinomaiset lastausmahdollisuudet liiketiloihin. Kuvat ovat yleiskuvia kiinteistön tiloista.
Seinäjoki Retail on liikekiinteistö-kokonaisuus, jolla on hyvä sijainti Seinäjoen keskustan tuntumassa, lähellä valtaväyliä. Kiinteistö on helposti saavutettavissa niin omalla autolla kuin julkisella liikenteellä. Tavaroiden lastaus onnistuu hyvien lastausmahdollisuuksien ansiosta. Piha-alueella on hyvin paikoitustiloja.
Kysy lisää numerosta 044 723 4700 tai info@bref.fi. Palvelumme on tilanhakijoille ilmainen.
Bureau Real Estate Finland Oy
Lars Sonckin kaari 16, 02600 Espoo
Näytä puhelinnumero
0447234700
Bureau Real Estate Finland Oy
https://www.bref.fi