Vuokrataan toimistotilat - Helsinki
Lintulahdenkatu 10, Sörnäinen, 00530 Helsinki #10806590
Vuokrataan 2.kerroksen tyylikäs persoonallinen kombitoimistotila peruskorjatusta kiinteistöstä Sörnäisten Rantatien tuntumassa Lintulahdessa. Talossa jäähdyttävä ilmastointi, aulapalvelu, lounasravintola, viihtyistä neuvottelu- ja saunaosasto katolla. Ota yhteyttä ja sovi esittely, vuokrauspalvelumme on tilanhakijoille maksuton.
Osoite
Lintulahdenkatu 10, 00530 Helsinki
Tilatyyppi
Toimistotilaa
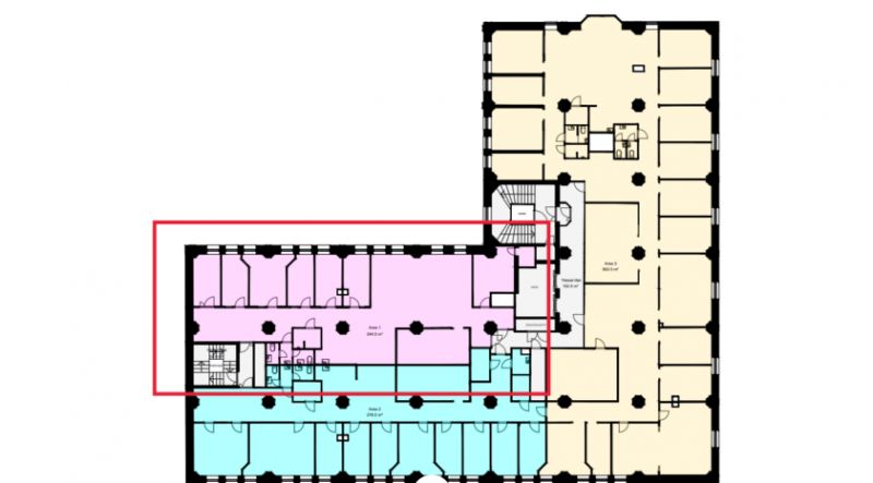
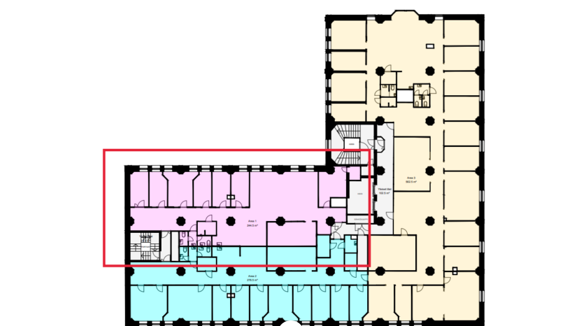
244,5 m2
Tilajako
Jaettavissa
Pohjapiirros
Kiinteistö
Kiinteistö Oy Lintulahdenkulma on arkkitehti Väinö Vähäkallion suunnittelema rakennus, jota nykyisin arvostetaan yhdeksi 1920- luvun tiiliklassismin merkittävimmistä monumenteista. Oman aikansa avantgardea edustanut rakennus valmistui alun perin vuonna 1927 OTK:n Sörnäisten keskusvarastoksi. Nykyisin tässä entisessä keskusvarastorakennuksessa on valoisat työtilat 230 henkilölle.
Rakennushistoriallisesti arvokkaan rakennuksen saneeratut tilat ovat tyylikkäät ja nykyaikaiset. Kaksisiipisessä rakennuksessa on yhdeksän kerrosta ja ullakko. Talon ensimmäisessä kerroksessa toimii suosittu lounasravintola ja ylimpään ullakkotilaan on rakennettu edustustilat ja sauna sekä kokoustiloja tarjoava neuvottelumaailma.
Rakennushistoriallisesti arvokkaan rakennuksen saneeratut tilat ovat tyylikkäät ja nykyaikaiset. Kaksisiipisessä rakennuksessa on yhdeksän kerrosta ja ullakko. Talon ensimmäisessä kerroksessa toimii suosittu lounasravintola ja ylimpään ullakkotilaan on rakennettu edustustilat ja sauna sekä kokoustiloja tarjoava neuvottelumaailma.
Sijainti
Lintulahti/Sörnäinen
Pysäköinti
Autopaikkoja pihalla sekä autohallissa.
Palvelut
Kiinteistössä ravintola-, neuvottelu- sekä saunatilat.
Kulkuyhteydet
HSL, raitiovaunu, metro.
Muuta
POHJAKUVA pdf löytyy liitetiedostosta.
Vapautuu
Heti
Rakennusvuosi
1927
Kerros
2 / 8
Energiatehokkuusluokka
Ei lain edellyttämää energiatodistusta
Jaettavissa
Hissi
Liitetiedostot
Ota yhteyttä
Senaatin Notariaatti Oy LKV
Lämmittäjänkatu 4 A
FIN-00880 Helsinki
Tel:
Näytä puhelinnumero
+358 9 7745 100
Pyydä lisätietoa
