Vuokrataan toimistotilat - Helsinki
Televisiokatu 4, Pasila, 00240 Helsinki #10806587
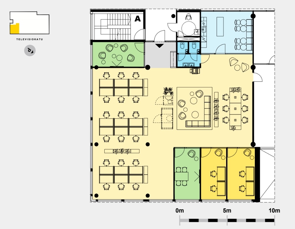
Muuttovalmis toimistotila 3A1 tarjoaa tehokkaan ja viihtyisän kokonaisuuden vähintään 28 työpisteelle, joista 18 sijoittuu avotilaan ja 6 hot desk -paikoille. Lisäksi tilassa on kolme vetäytymistilaa keskittymistä vaativaan työskentelyyn. Modernin kahvilakeittiön yhteydessä sijaitseva tauko- ja kohtaamisalue luo luontevan paikan yhteistyölle ja hengähdyshetkille. Ikkunoista avautuvat valoisat näkymät itään ja etelään. Varusteluun kuuluvat tekstiilipalamatot, vaaleasävyiset taukokeittiöt vinyylilankkulattioilla sekä energiatehokas LED-valaistus. Sähkömaksu on 0,65 €/m²/kk ja aulapalvelumaksu veloitetaan erikseen.
Pasilan Linkki on erinomainen ratkaisu, kun haluat edustavat tilat helposti saavutettavalla sijainnilla. Kiinteistön palveluihin kuuluu aulapalvelu, kahvila ja ravintola, kokouspalvelut sekä kuntosali. Muuntojoustavien tilojen tarkkaan harkitut yksityiskohdat ja huipputeknologia takaavat optimaaliset työolosuheet sekä yksilö- että tiimityöskentelyyn ja kokouksiin. Tilojen suunnittelussa on otettu huomioon valaistuksen, akustiikan ja ilmastoinnin merkitys työteholle ja motivaatiolle. Pasilan ja Ilamlan asemat ovat vain minuuttien kävelymatkan päässä, ja ratikka sekä bussit kulkevat lähelä. Oman auton puolestaan saa kätevästi kiinteistön parkkihalliin.
Me Croisettella autamme teitä löytämään teille parhaat tilat! Olemme puolueettomia asiantuntijoita ja tunnemme toimitilamarkkinat, talot sekä tilat vankalla kokemuksella. Meillä on välityksessä kaikki toimitilat ja tiedämme niiden alustavat vuokratasot.
Tehtävämme on tehdä toimitilahaustanne onnistunut ja helppo. Saamme palkkiomme kiinteistönomistajalta, joten sinulle palvelumme on täysin maksuton.
Hissi
Croisette Real Estate Partner
Erottajankatu 5 A 6, 00130 Helsinki
Näytä puhelinnumero
+358 400 585 857
Croisette Vuokraus
Näytä puhelinnumero
+358400585857
