Vuokrataan toimistotilat - Espoo
Lars Sonckin Kaari 10-16, Leppävaara, 02600 Espoo #10806581
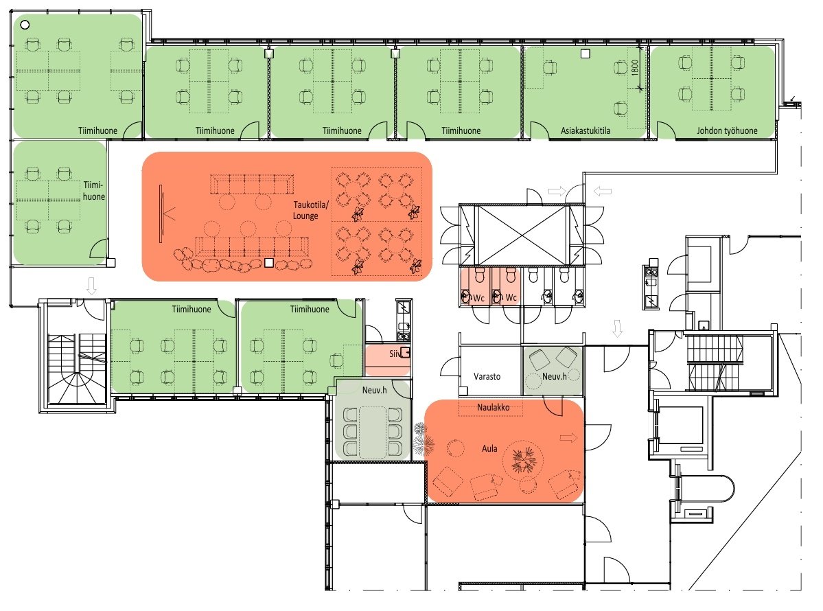
Vapaana valoisa viidennen kerroksen toimisto Leppävaarassa. Tilasta löytyy runsaasti työ- ja neuvotteluhuoneita, varasto sekä aula. Lisäksi tilassa on suuri lounge-tila, keittiö ja wc-tilat.
Stella Business Park sijaitsee erinomaisella paikalla Espoon Leppävaarassa. Kokonaisuuteen kuuluvat neljä kiinteistöä jotka on ristitty Lunaksi, Terraksi, Solarikseksi ja Novaksi. Modernit toimitilat sopivat kaikenkokoisille toimijoille. Kohteessa vuokralaisella on hyvä olla kun palveluita työnarkeen löytyvät mm. aula- ja postituspalvelu, avara kuntosali, auditorio, kattokerroksen saunatilat, neuvottelukeskus, autopesula sekä lounasravintola. Juna-asemalle kävelet nopeasti ja autolla saapuvat iloitsevat että Stella Business Parkissa on myös kaksi suurta parkkihallia, runsaasti parkkitilaa sekä sähköauton latauspisteitä. Huomioithan, että kuvat eivät välttämättä ole juuri tästä toimistosta.
Me Croisettella autamme teitä löytämään teille parhaat tilat! Olemme puolueettomia asiantuntijoita ja tunnemme toimitilamarkkinat, talot sekä tilat vankalla kokemuksella. Meillä on välityksessä kaikki toimitilat ja tiedämme niiden alustavat vuokratasot.
Tehtävämme on tehdä toimitilahaustanne onnistunut ja helppo. Saamme palkkiomme kiinteistönomistajalta, joten sinulle palvelumme on täysin maksuton.
Hissi
Croisette Real Estate Partner
Erottajankatu 5 A 6, 00130 Helsinki
Näytä puhelinnumero
+358 400 585 857
Croisette Vuokraus
Näytä puhelinnumero
+358400585857
