Vuokrataan toimistotilat - Espoo
Vanha maantie 1, Leppävaara, 02650 Espoo #10806377
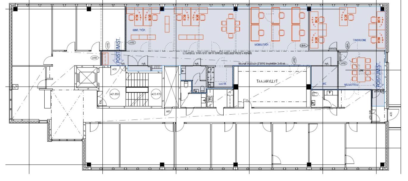
Vuokrattavissa huonetoimistotilaa 4. kerroksesta, Selloon suuntautuvin näkymin.
Business Center Sointu sijaitsee keskeisellä paikalla Leppävaarassa, kävelymatkan päässä juna-asemasta ja kauppakeskus Sellosta. Sointu tarjoaa asiakkailleen sopimuksen mukaan mm. aula- ja ravintolapalveluita, auditorio- ja sosiaalitiloja sekä kuntosalin. Pysäköintipaikkoja on saatavilla ulkoa tai lämpimästä autohallista. Kauppakeskus Sellon monipuolinen palvelu- ja ravintolatarjonta on lähellä.
Lisätiedot ja kohde-esittelyt 020 7290 710, lisää kohteita premises.fi
Energialuokka E2007.Kerros: 4
CRE PREMISES
Puh. Näytä puhelinnumero 020 7290 710
Vantaankoskentie 14
01670 VANTAA
