Vuokrataan toimistotilat - Helsinki
Pohjoisesplanadi 37, Kluuvi, 00100 Helsinki #10806359
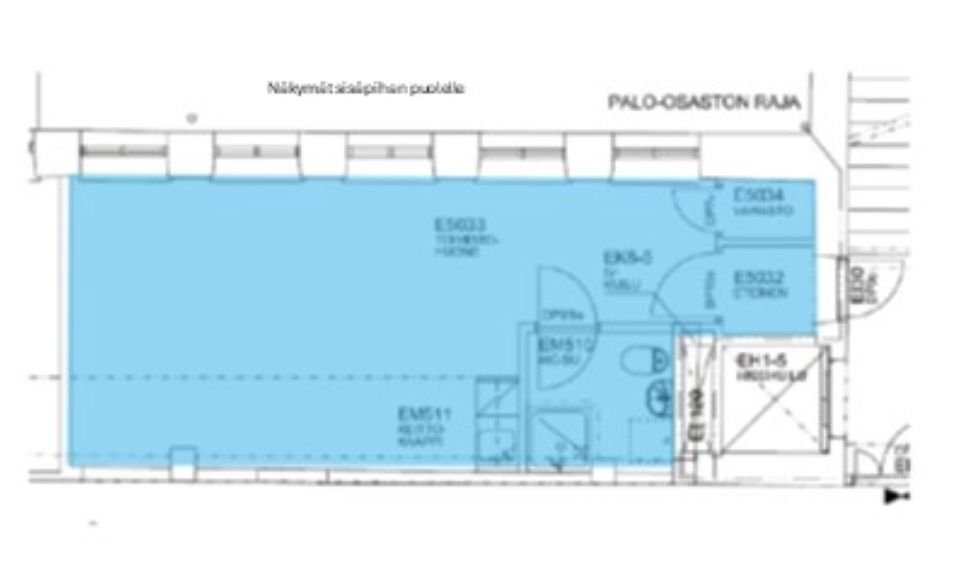
Vuokrataan 40.5m2 toimistotilaa erinomaisella ja halutulla sijainnilla Helsingin ydinkeskustan liike-elämän, hallinnon ja kulttuurin kohtauspisteessä. Vilkas Esplanadi on parasta mahdollista ympäristöä menestyvälle yritykselle. Talo on saneerattu nykyaikaisen talotekniikan vaatimustason täyttäväksi.
Lähin autoilijoita palveleva pysäköintihalli sijaitsee Kluuvissa, sisäänajo Kaisaniemestä tai Fabianinkadulta. Julkisen liikenteen yhteydet ovat vain lyhyen kävelymatkan päässä.
Lisätietoja 020 7290 710, lisää kohteita www.premises.fi
Kohteella ei ole lain edellyttämää energiatodistusta tai energialuokka ei tiedossa.Kerros: 5
CRE PREMISES
Puh. Näytä puhelinnumero 020 7290 710
Vantaankoskentie 14
01670 VANTAA
