Vuokrataan toimistotilat - Tampere
Haarlankatu 4, Onkiniemi, 33230 Tampere #10806239
Haarlan paperitehdaskiinteistössä monipuolista toimistotilaa
Osoite
Haarlankatu 4, 33230 Tampere
Tilatyyppi
Toimistotilaa
406 m2
Pysäköinti
Pihassa
Muuta
Haarlan entisessä paperitehdaskiinteistössä monikäyttöistä toimistotilaa
Bertel Strömmerin suunnittelemassa tehdasrakennuksessa toimi vuosina 1920-1989 Kauppaneuvos Rafael Haarlan perustama Haarlan Paperitehdas Oy.
Nykyään kiinteistössä toimii lukuisia eri alojen toimijoita, ja tilat on remontoitu uudenaikaisiksi, kuitenkin vanhaa tehdasrakennusta kunnioittaen.
Rakennus sijaitsee Rantatunnelin länsipuolen tunnelin suulla ja sinne on erittäin hyvät kulkuyhteydet niin omalla autolla kuin ratikalla tai paikallisbussillakin. Pyöräilyreitti kulkee vieressä. Näsijärven rantaan, Santalahden tapahtumapuistoon ja Särkänniemeen on lyhyt matka, samoin keskustan ja Lielahden alueen palveluihin. Paasikiven tien liikenne on erittäin vilkas ja näkyvyys kiinteistölle erittäin hyvä.
Pihassa on runsaasti pysäköintitilaa ja asiakaspysäköinnit sekä peruspysäköintipaikat vuokralaisille ovat ilmaisia. Lämmitystolpallisia paikkoja vuokrataan hyvin kohtuulliseen hintaan. Vanhassa pihan kaarihallissa sijaitsee lounas-kahvio.
Rakennuksessa on käytössä tavarahissi ja kellarista voi kysellä varastointitilaa.
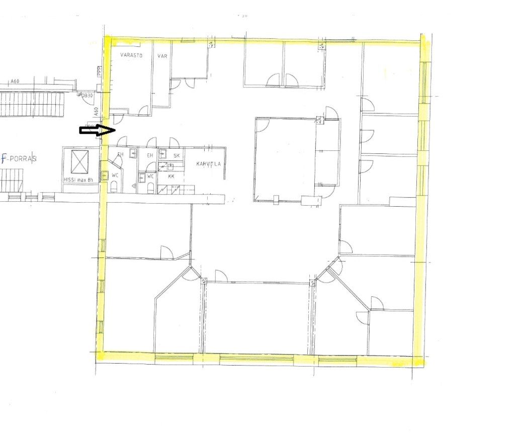
Nyt vapaana monikäyttöistä toimitilaa F-rapun 2. kerroksessa.
Rapussa hissi ja luiska. Tilan koko on 406 m2. Se koostuu avotilasta, useista erikokoisista huoneista ja keittiö- sekä wc-tiloista. Yhdessä sosiaalitilassa on paikat esim. pyykinpesukoneille. Mukavat näkymät ikkunoista kolmeen eri suuntaan.
Tämä tila soveltuu monenlaiseen toimintaan mm. toimistokäyttöön sekä hyvinvointi- ja terveyspalvelujen tarjoajille. Hyvä ilmanvaihto ja jäähdytys. Tilaa on mahdollista räätälöidä käyttäjän tarpeisiin sopivaksi.
Tervetuloa tutustumaan, varaathan välittäjältä oman esittelyaikasi. Voit kysyä meiltä myös muita sopivia vaihtoehtoja, kauttamme löydät juuri Teidän tarpeisiinne sopivat tilat. Palvelumme on tilanhakijalle veloitukseton!
Bertel Strömmerin suunnittelemassa tehdasrakennuksessa toimi vuosina 1920-1989 Kauppaneuvos Rafael Haarlan perustama Haarlan Paperitehdas Oy.
Nykyään kiinteistössä toimii lukuisia eri alojen toimijoita, ja tilat on remontoitu uudenaikaisiksi, kuitenkin vanhaa tehdasrakennusta kunnioittaen.
Rakennus sijaitsee Rantatunnelin länsipuolen tunnelin suulla ja sinne on erittäin hyvät kulkuyhteydet niin omalla autolla kuin ratikalla tai paikallisbussillakin. Pyöräilyreitti kulkee vieressä. Näsijärven rantaan, Santalahden tapahtumapuistoon ja Särkänniemeen on lyhyt matka, samoin keskustan ja Lielahden alueen palveluihin. Paasikiven tien liikenne on erittäin vilkas ja näkyvyys kiinteistölle erittäin hyvä.
Pihassa on runsaasti pysäköintitilaa ja asiakaspysäköinnit sekä peruspysäköintipaikat vuokralaisille ovat ilmaisia. Lämmitystolpallisia paikkoja vuokrataan hyvin kohtuulliseen hintaan. Vanhassa pihan kaarihallissa sijaitsee lounas-kahvio.
Rakennuksessa on käytössä tavarahissi ja kellarista voi kysellä varastointitilaa.
Nyt vapaana monikäyttöistä toimitilaa F-rapun 2. kerroksessa.
Rapussa hissi ja luiska. Tilan koko on 406 m2. Se koostuu avotilasta, useista erikokoisista huoneista ja keittiö- sekä wc-tiloista. Yhdessä sosiaalitilassa on paikat esim. pyykinpesukoneille. Mukavat näkymät ikkunoista kolmeen eri suuntaan.
Tämä tila soveltuu monenlaiseen toimintaan mm. toimistokäyttöön sekä hyvinvointi- ja terveyspalvelujen tarjoajille. Hyvä ilmanvaihto ja jäähdytys. Tilaa on mahdollista räätälöidä käyttäjän tarpeisiin sopivaksi.
Tervetuloa tutustumaan, varaathan välittäjältä oman esittelyaikasi. Voit kysyä meiltä myös muita sopivia vaihtoehtoja, kauttamme löydät juuri Teidän tarpeisiinne sopivat tilat. Palvelumme on tilanhakijalle veloitukseton!
Vapautuu
Kysy
Kerros
2.
Ota yhteyttä
Tuloskiinteistöt Oy
Finlaysoninkatu 4, 33210 Tampere
Näytä puhelinnumero
050 502 4639
Sanna Eerilä-Vänni
Director, Partner
Näytä puhelinnumero
+358 50 5024639
Pyydä lisätietoa
