Vuokrataan toimistotilat - Helsinki
Hämeentie 29, Sörnäinen, 00500 Helsinki #10806223
Toimistotilaa Sörnäisistä
Osoite
Hämeentie 29, 00500 Helsinki
Tilatyyppi
Toimistotilaa
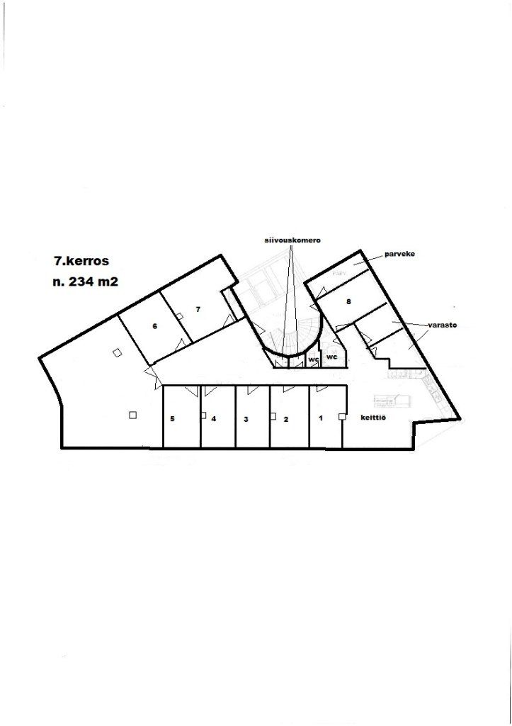
234 m2
Muuta
Vuokrattavana heti vapaa 234 m² seitsemännen kerroksen toimistotila Sörnäisistä keskeiseltä sijainnilta.
Tilassa on erillinen neuvotteluhuone sekä useita toimistohuoneita, jotka tarjoavat rauhalliset työtilat ja mahdollistavat monipuoliset käyttötarkoitukset.
Sijainti on erinomainen niin julkisilla kulkuyhteyksillä liikkuville kuin autoileville.
Läheltä löytyy monipuolisesti palveluita.
Tervetuloa tutustumaan, varaathan välittäjältä oman esittelyaikasi. Voit kysyä meiltä myös muita sopivia vaihtoehtoja, kauttamme löydät juuri Teidän tarpeisiinne sopivat tilat.
Palvelumme on tilanhakijalle veloitukseton
Tilassa on erillinen neuvotteluhuone sekä useita toimistohuoneita, jotka tarjoavat rauhalliset työtilat ja mahdollistavat monipuoliset käyttötarkoitukset.
Sijainti on erinomainen niin julkisilla kulkuyhteyksillä liikkuville kuin autoileville.
Läheltä löytyy monipuolisesti palveluita.
Tervetuloa tutustumaan, varaathan välittäjältä oman esittelyaikasi. Voit kysyä meiltä myös muita sopivia vaihtoehtoja, kauttamme löydät juuri Teidän tarpeisiinne sopivat tilat.
Palvelumme on tilanhakijalle veloitukseton
Vapautuu
Kysy
Kerros
7
Ota yhteyttä
Tuloskiinteistöt Oy
Rikhardinkatu 2 B 5, 00130 Helsinki
Näytä puhelinnumero
(09) 6841 620
Nina Meyke
Commercial Real Estate Advisor
Näytä puhelinnumero
+358 50 466 1519
Jorma Ryynänen
Commercial Real Estate Advisor LKV, LVV
Näytä puhelinnumero
+358 40 708 4064
Pyydä lisätietoa
