Vuokrataan liiketilat - Seinäjoki
Puskantie 13, Keskusta Seinäjoki, 60100 Seinäjoki #10806153
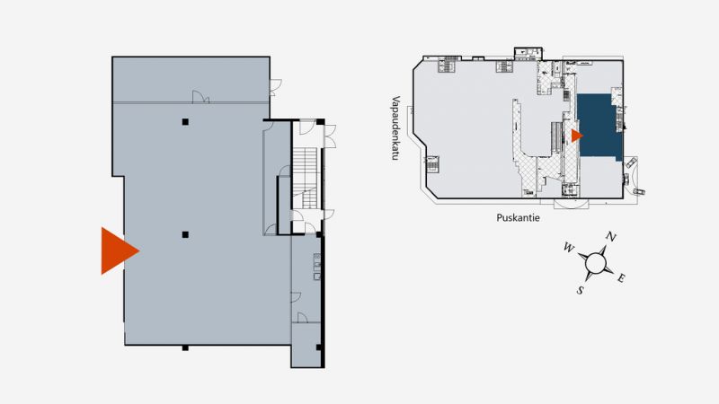
Vuokrattavana liiketilaa Seinäjoen keskustasta, Kauppakeskus Ostoskulmasta.
Tämä 378 m² liiketila sijaitsee kiinteistön 1. kerroksessa. Tilaan kuuluu minikeittiö. Ei sovellu ravintola-, kahvila- tai kampaamotoimintaan. This premise is not suitable for a restaurant, cafeteria or a barber shop.
Puskantie 13 sijaitsee Seinäjoen keskustassa, hyvien liikenneyhteyksien varrella lähellä valtateitä. Kiinteistössä on ilmainen asiakaspysäköinti
Kysy lisää numerosta 044 723 4700 tai info@bref.fi. Palvelumme on tilanhakijoille ilmainen.
Bureau Real Estate Finland Oy
Lars Sonckin kaari 16, 02600 Espoo
Näytä puhelinnumero
0447234700
Bureau Real Estate Finland Oy
https://www.bref.fi