Vuokrataan toimistotilat - Helsinki
Mikonkatu 4, Kluuvi, 00100 Helsinki #10806047
Upeasti remontoitu, valoisa toimistohuoneisto Historiallisesti arvokaassa kiinteistössä.
Osoite
Mikonkatu 4, 00100 Helsinki
Tilatyyppi
Toimistotilaa
170 m2
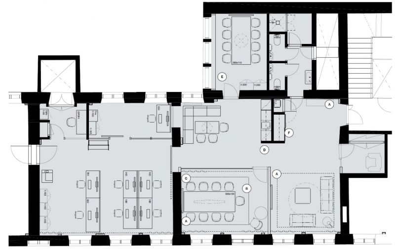
Pohjapiirros
Kiinteistö
Arvokiinteistön neljännestä kerroksesta vapautuva edustava toimistotila joka on vastaikään remontoitu. Tilassa on tehokkaat tilaratkaisut, jotka voi joustavasti hyödyntää monitilaympäristönä. Tiloissa on koneellinen ilmanvaihto ja jäähdytys.
Toimistossa on nykyjaolla:
- avotoimistotilaa
- 2 kpl toimistohuonetta
- 2 kpl eri kokoista neuvotteluhuonetta
- puhelin/teams huone
- keittiö ja taukotila
- vessat sekä oma suihkutila
Toimistotilaan on myös tavarahissiyhteys.
Toimistossa on nykyjaolla:
- avotoimistotilaa
- 2 kpl toimistohuonetta
- 2 kpl eri kokoista neuvotteluhuonetta
- puhelin/teams huone
- keittiö ja taukotila
- vessat sekä oma suihkutila
Toimistotilaan on myös tavarahissiyhteys.
Sijainti
Kiinteistö sijaitsee Helsingin ydinkeskustan parhaimmalla paikalla Gaselli-korttelissa, Aleksanterinkadun varrella. Samassa kiinteistössä toimii legendaarinen Mummotunneli.
Pysäköinti
Keskustan parkkihallit
Palvelut
Kaikki ydin keskustan palvelut vain kivenheiton päässä.
Kulkuyhteydet
raitiovaunupysäkki kiinteistön edessä
rautatieasema 450m
metro 450 m
rautatieasema 450m
metro 450 m
Muuta
Toimisto vapautuu 01.02.2025
Vapautuu
01.02.2025
Energiatehokkuusluokka
Ei lain edellyttämää energiatodistusta
Katutasossa
Näkyvällä paikalla
Ota yhteyttä
Comreal Oy LKV
Joonas Nilsson
Näytä puhelinnumero
044 328 3425
Läkkisepänkuja 6, 00620 Helsinki
Comreal on valtakunnallinen, asiantunteva ja aktiivinen kiinteistöalan kumppani, joka palvelee sekä kiinteistönomistajia että toimitilojen käyttäjiä. Toimintamme ydin on yksinkertainen: tarjota erinomaista palvelua kaikille.
Pyydä lisätietoa
