Videoesittely
Vuokrataan toimistotilat - Helsinki
Pohjoisesplanadi 37, Kluuvi, 00100 Helsinki #10806043
Kesällä 2025 valmistuva täysin remontoitu toimistotila Helsingin ydinkeskustan arvokiinteistössä.
Osoite
Pohjoisesplanadi 37, 00100 Helsinki
Tilatyyppi
Toimistotilaa
168 m2
Pohjapiirros
Kiinteistö
Tämä täysin remontoitu toimistotila sijaitsee sisäpihan puolella uuden kahvila- ja ravintolakeskittymän yläpuolella. Kiineistössä on kehityshanke meneillään jossa sisäpiha katetaan kauniilla verkkomaisella katteella ja siitä tulee lämmintä sisätilaa, jossa nautittavissa omassa korttelissa maukasta ruokaa ja juomaa.
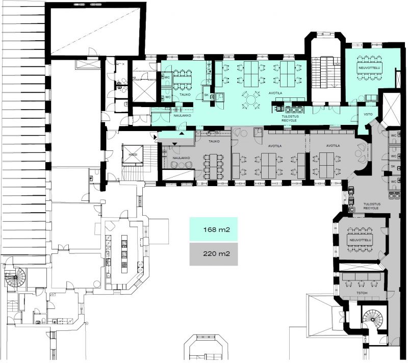
Toimistokokonaisuus kattaa kaksi huoneistoa 168 m2 ja 220 m2 jotka on mahdollista vuokrata erikseen tai yhdessä jolloin koko toimistopinta-ala on 338 m2.
Toimisto 168 m2
- sisäänkäynti sisäpihan puolelta E-rapusta.
- 1 kpl iso neuvotteluhuone
- avotoimistotilaa
- keittiö ja taukotila
- 2 kpl wc
Katso tilan tarkempi pohjakuva kohde-esitteen valokuvista. Tilaa on myös mahdollista muokata vuokralaisen toiveiden mukaan.
Korkea huonekorkeus!
Toimistokokonaisuus kattaa kaksi huoneistoa 168 m2 ja 220 m2 jotka on mahdollista vuokrata erikseen tai yhdessä jolloin koko toimistopinta-ala on 338 m2.
Toimisto 168 m2
- sisäänkäynti sisäpihan puolelta E-rapusta.
- 1 kpl iso neuvotteluhuone
- avotoimistotilaa
- keittiö ja taukotila
- 2 kpl wc
Katso tilan tarkempi pohjakuva kohde-esitteen valokuvista. Tilaa on myös mahdollista muokata vuokralaisen toiveiden mukaan.
Korkea huonekorkeus!
Sijainti
Helsingin ydinkeskusta.
Pysäköinti
Lähin autoilijoita palveleva pysäköintihalli sijaitsee Kluuvissa, sisäänajo Kaisaniemestä tai Fabianinkadulta.
Palvelut
Katutason liiketiloihin tulee kehityshankkeen myötä ravintolatoimijoita ja upea katettu sisäpiha palveluineen myös keskusta-alueen monipuoliset palvelut ovat vain kiven heiton päässä kohteesta.
Kulkuyhteydet
Julkisen liikenteen yhteydet ovat vain lyhyen kävelymatkan päässä.
Muuta
Talo on saneerattu nykyaikaisen talotekniikan vaatimustason täyttäväksi.
Vapautuu
01.06.2025
Energiatehokkuusluokka
Ei lain edellyttämää energiatodistusta
Näkyvällä paikalla
Ota yhteyttä
Comreal Oy LKV
Joonas Nilsson
Näytä puhelinnumero
044 328 3425
P.
Näytä puhelinnumero
020 744 1000
Läkkisepänkuja 6, 00620 Helsinki
Comreal Oy on kasvava ja osaava kiinteistöalan palveluntuottaja kiinteistöjen omistajille ja käyttäjille.
Kiinteistö on sijoittajalle hyvä sijoitus vain, jos siellä on tyytyväiset asiakkaat, eli vuokralaiset. Siksi laadukas asiakaspalvelu on toiminnan lähtökohta.
Pyydä lisätietoa
