Vuokrataan toimistotilat - Helsinki
Elimäenkatu 28, Vallila, 00520 Helsinki #10806033
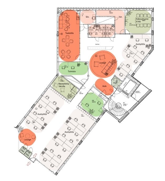
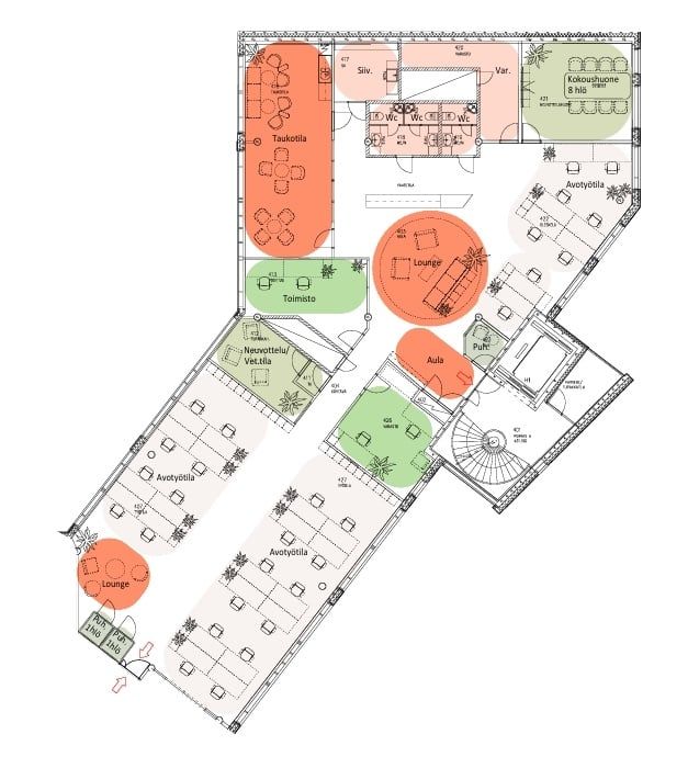
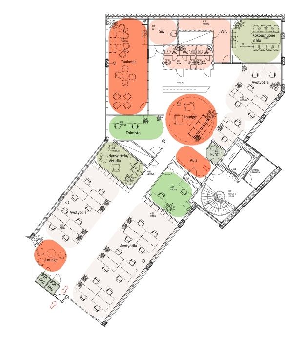
Nyt vuokrattavissa toimisto suurella avotilalla. Tilasta löytyy avotilan lisäksi myös työ- ja neuvotteluhuoneita sekä taukokeittiö ja lounge-alue.
Elimäenkatu 28 tarjoaa yrityksille siistit ja tehokkaat teollisuushenkiset toimitilat. Tilat ovat pääosin avokonttoreita, mutta myös erillisiä työhuoneita ja neuvottelutiloja löytyy. Kiinteistössä on tavarahissi useimpiin tiloihin. Pysäköintitilaa on runsaasti omassa autohallissa (254 paikkaa), ja lisäpaikkoja voi vuokrata viereisestä hallista. Alueella on monipuolinen lounaspalvelutarjonta.
Kohde sijaitsee lähellä vilkasliikenteistä Mäkeläkatua ja Pasilan asemaa, josta on hyvät yhteydet Tuusulanväylälle ja Lahden moottoritielle. Raitiovaunu- ja bussiyhteydet kulkevat aivan talon läheltä.
Me Croisettella autamme teitä löytämään teille parhaat tilat! Olemme puolueettomia asiantuntijoita ja tunnemme toimitilamarkkinat, talot sekä tilat vankalla kokemuksella. Meillä on välityksessä kaikki toimitilat ja tiedämme niiden alustavat vuokratasot.
Tehtävämme on tehdä toimitilahaustanne onnistunut ja helppo. Saamme palkkiomme kiinteistönomistajalta, joten sinulle palvelumme on täysin maksuton.
Hissi
Croisette Real Estate Partner
Erottajankatu 5 A 6, 00130 Helsinki
Näytä puhelinnumero
+358 400 585 857
Croisette Vuokraus
Näytä puhelinnumero
+358400585857
