Vuokrataan toimistotilat - Helsinki
Elimäenkatu 30, Pasila, 00520 Helsinki #10806031
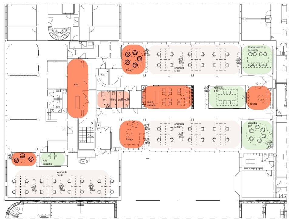
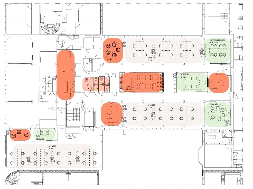
Nyt vuokrattavissa teollisuushenkiset ja modernit toimitilat Pasilassa. Toimistot ovat muokattavissa tarpeidesi mukaan, joten voit räätälöidä tilan juuri oman yrityksesi tarpeisiin. Tilassa on avointa työskentelytilaa sekä erillisiä työ- ja neuvotteluhuoneita. Lisäksi toimitilassa on viihtyisä keittiö, lounge-alue ja wc-tilat.
Elimäenkatu 30 tarjoaa modernit ja teollisuushenkiset toimitilat, jotka on juuri uudistettu ja ovat muokattavissa yrityksen tarpeiden mukaan. Kiinteistössä on lounasravintola, ja alueen muut palvelut ovat kävelyetäisyydellä. BREEAM Very Good -ympäristösertifikaatti ja 100 % kotimainen tuulisähkö takaavat kestävän toimintatavan kiinteistössä. Kiinteistö sijaitsee kehittyvällä alueella ja tarjoaa erinomaiset kulkuyhteydet keskustaan sekä Pasilan juna-asemalle.
Me Croisettella autamme teitä löytämään teille parhaat tilat! Olemme puolueettomia asiantuntijoita ja tunnemme toimitilamarkkinat, talot sekä tilat vankalla kokemuksella. Meillä on välityksessä kaikki toimitilat ja tiedämme niiden alustavat vuokratasot.
Tehtävämme on tehdä toimitilahaustanne onnistunut ja helppo. Saamme palkkiomme kiinteistönomistajalta, joten sinulle palvelumme on täysin maksuton.
Croisette Real Estate Partner
Erottajankatu 5 A 6, 00130 Helsinki
Näytä puhelinnumero
+358 400 585 857
Croisette Vuokraus
Näytä puhelinnumero
+358400585857
