Vuokrataan liiketilat - Lempäälä
Areenakatu 7, 37570 Lempäälä #10805827
Osoite
Areenakatu 7, 37570 Lempäälä
Tilatyyppi
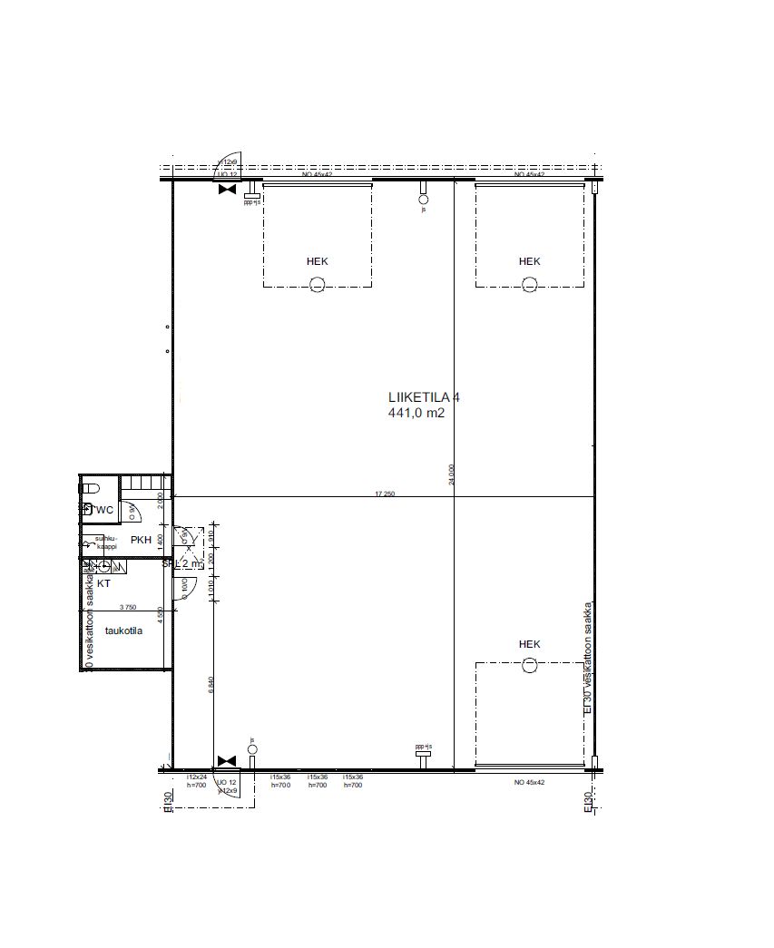
Liiketilaa
441 m2
Muuta
Vuokrataan hallitilaa liike- ja varastokäyttöön Lempäälän Real Parkin alueelta. Kaksi nosto-ovea tilan takapuolella ja yksi Areenakadun puolella. Nosto-ovien edessä hiekanerotuskaivot. Koneellinen tulo- ja poistoilmanvaihto.
Autopaikkoja saatavilla 28 kpl.
Kysy lisää!
Autopaikkoja saatavilla 28 kpl.
Kysy lisää!
Vapautuu
Sopimuksen mukaan
Ota yhteyttä
Catella Property Oy
Hämeenkatu 13b A, 33100 Tampere
Näytä puhelinnumero
010 5220 100
Sami Saraste
Näytä puhelinnumero
050 3014 455
Pyydä lisätietoa
