Vuokrataan tuotantotilat - Helsinki
Muonamiehentie 12, Konala, 00390 Helsinki #10805725
Vuokrataan tuotantotilaa Konalasta
Osoite
Muonamiehentie 12, 00390 Helsinki
Tilatyyppi
Tuotantotilaa
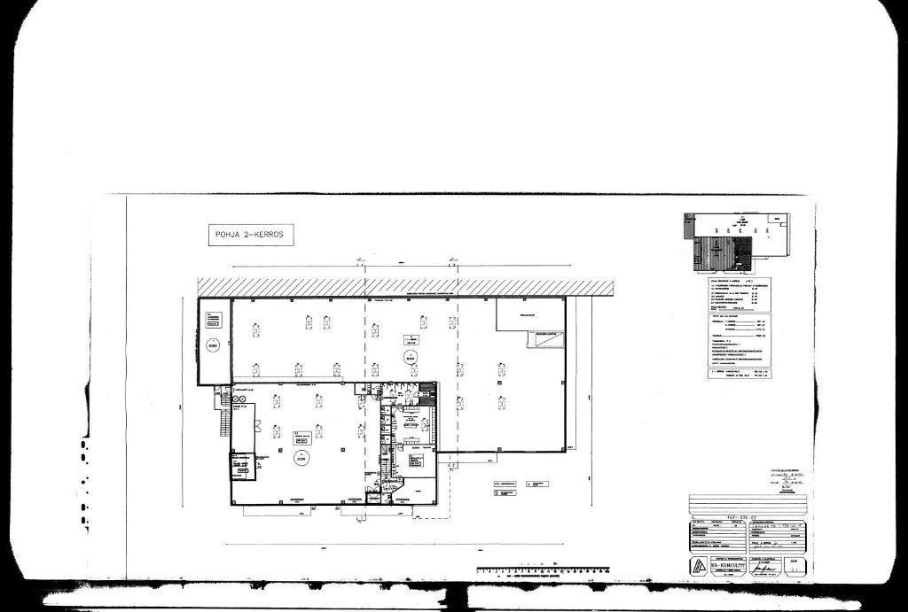
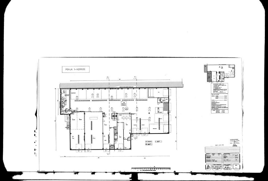
2100 m2
Muuta
Vuokrattavana 2100 m² tuotantotilaa Helsingistä Konalasta.
Tila on valmistunut vuonna 2001 ja on suunniteltu autohuoltotilaksi, joten se soveltuu erityisesti autoalan toimintaan.
Konalassa sijaitseva kohde on helposti saavutettavissa, ja alueella on hyvät kulkuyhteydet. Tämä tekee tilasta erinomaisen vaihtoehdon yritykselle, joka etsii toimivaa ja käytännöllistä huoltotilaa Helsingistä.
Tervetuloa tutustumaan, varaathan välittäjältä oman esittelyaikasi. Voit kysyä meiltä myös muita sopivia vaihtoehtoja, kauttamme löydät juuri Teidän tarpeisiinne sopivat tilat.
Palvelumme on tilanhakijalle veloitukseton!
Tila on valmistunut vuonna 2001 ja on suunniteltu autohuoltotilaksi, joten se soveltuu erityisesti autoalan toimintaan.
Konalassa sijaitseva kohde on helposti saavutettavissa, ja alueella on hyvät kulkuyhteydet. Tämä tekee tilasta erinomaisen vaihtoehdon yritykselle, joka etsii toimivaa ja käytännöllistä huoltotilaa Helsingistä.
Tervetuloa tutustumaan, varaathan välittäjältä oman esittelyaikasi. Voit kysyä meiltä myös muita sopivia vaihtoehtoja, kauttamme löydät juuri Teidän tarpeisiinne sopivat tilat.
Palvelumme on tilanhakijalle veloitukseton!
Vapautuu
Kysy
Rakennusvuosi
2001
Ota yhteyttä
Tuloskiinteistöt Oy
Rikhardinkatu 2 B 5, 00130 Helsinki
Näytä puhelinnumero
(09) 6841 620
Nina Meyke
Commercial Real Estate Advisor
Näytä puhelinnumero
+358 50 466 1519
Otto Ahtola
Commercial Real Estate Advisor
Näytä puhelinnumero
+358 40 042 2830
Pyydä lisätietoa
