Vuokrataan toimistotilat - Helsinki
Nilsiänkatu 15, Vallila, 00510 Helsinki #10805681
Modernia ja laadukasta toimistotilaa Vallilasta
Osoite
Nilsiänkatu 15, 00510 Helsinki
Tilatyyppi
Toimistotilaa
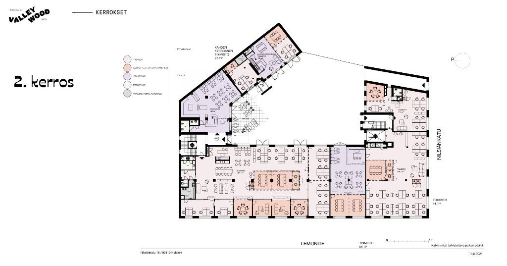
114 m2
Muuta
Vuokrattavana modernia 114 m² toimistotilaa loft-henkisestä kiinteistöstä Vallilan Nilsiänkadulla.
Toimistotila sijaitsee toisessa kerroksessa, ja se räätälöidään vuokralaisen tarpeiden mukaisesti. Muunneltavat tilat soveltuvat moneen eri tarkoitukseen.
Valleywood on entinen Vallila Interiorsin teollisuuskiinteistö, jossa yhdistyvät ainutlaatuinen historia ja tunnelma. Kiinteistön vaikuttavan korkeat ja avarat kerrokset mahdollistavat tilojen monipuolisen käytön ja inspiroivan työympäristön.
Kiinteistö sijaitsee hyvien kulkuyhteyksien varrella, joten sinne on helppo saapua niin julkisilla kulkuneuvoilla, pyörällä kuin autollakin. Kiinteistön omassa autohallissa on paikkoja 16 autolle, ja lisäksi Aimo Park Vallila sekä lähialueen julkiset pysäköintialueet tarjoavat runsaasti lisäpysäköintitilaa.
Osa sisäkuvista arkkitehdin suunnittelemia havainnekuvia.
Tervetuloa tutustumaan, varaathan välittäjältä oman esittelyaikasi. Voit kysyä meiltä myös muita sopivia vaihtoehtoja, kauttamme löydät juuri Teidän tarpeisiinne sopivat tilat.
Palvelumme on tilanhakijalle veloitukseton!
Toimistotila sijaitsee toisessa kerroksessa, ja se räätälöidään vuokralaisen tarpeiden mukaisesti. Muunneltavat tilat soveltuvat moneen eri tarkoitukseen.
Valleywood on entinen Vallila Interiorsin teollisuuskiinteistö, jossa yhdistyvät ainutlaatuinen historia ja tunnelma. Kiinteistön vaikuttavan korkeat ja avarat kerrokset mahdollistavat tilojen monipuolisen käytön ja inspiroivan työympäristön.
Kiinteistö sijaitsee hyvien kulkuyhteyksien varrella, joten sinne on helppo saapua niin julkisilla kulkuneuvoilla, pyörällä kuin autollakin. Kiinteistön omassa autohallissa on paikkoja 16 autolle, ja lisäksi Aimo Park Vallila sekä lähialueen julkiset pysäköintialueet tarjoavat runsaasti lisäpysäköintitilaa.
Osa sisäkuvista arkkitehdin suunnittelemia havainnekuvia.
Tervetuloa tutustumaan, varaathan välittäjältä oman esittelyaikasi. Voit kysyä meiltä myös muita sopivia vaihtoehtoja, kauttamme löydät juuri Teidän tarpeisiinne sopivat tilat.
Palvelumme on tilanhakijalle veloitukseton!
Vapautuu
Kysy
Rakennusvuosi
1935
Kerros
2
Ota yhteyttä
Tuloskiinteistöt Oy
Rikhardinkatu 2 B 5, 00130 Helsinki
Näytä puhelinnumero
(09) 6841 620
Otto Ahtola
Commercial Real Estate Advisor
Näytä puhelinnumero
+358 40 042 2830
Jorma Ryynänen
Commercial Real Estate Advisor LKV, LVV
Näytä puhelinnumero
+358 40 708 4064
Pyydä lisätietoa
