Vuokrataan toimistotilat - Helsinki
Kaisaniemenkatu 1, Keskusta, 00100 Helsinki #10805657
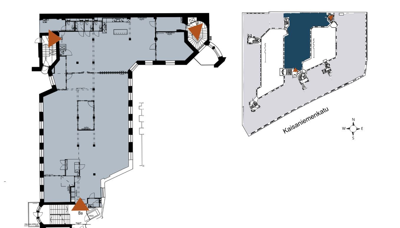
Vuokrataan äskettäin remontoitu avotoimisto muutamalla erillishuoneella. Tila on muuttovalmis, mutta vuokranantaja teettää mahdolliset muutostyöt vuokralaisen toiveiden mukaan. Rauhallinen sijainti sisäpihan siivessä. Kellarissa pyöräparkki ja suihkutilat sekä miehille että naisille. Ota yhteyttä ja sovi esittely, vuokrauspalvelumme on tilanhakijoille maksuton.
Osoite
Kaisaniemenkatu 1, 00100 Helsinki
Tilatyyppi
Toimistotilaa
408 m2
Pohjapiirros
Kiinteistö
Historiallinen ja persoonallinen kiinteistö tarjoaa ainutlaatuiset puitteet vaativimmallekin yritykselle. Vuonna 1924 rakennetun kiinteistön julkisivun ja sisäpihan remontti valmistui vuonna 2015.
Kulkuyhteydet
Ratikka, metrot, Rautatieaseman välittömässä läheisyydessä.
Vapautuu
Heti
Rakennusvuosi
1931
Saneerausvuosi
2015
Kerros
3
Energiatehokkuusluokka
G2007
Näkyvällä paikalla
Ota yhteyttä
Senaatin Notariaatti Oy LKV
Lämmittäjänkatu 4 A
FIN-00880 Helsinki
Tel:
Näytä puhelinnumero
+358 9 7745 100
Pyydä lisätietoa
