Vuokrataan toimistotilat - Helsinki
Mikonkatu 17, Kluuvi, 00100 Helsinki #10805500
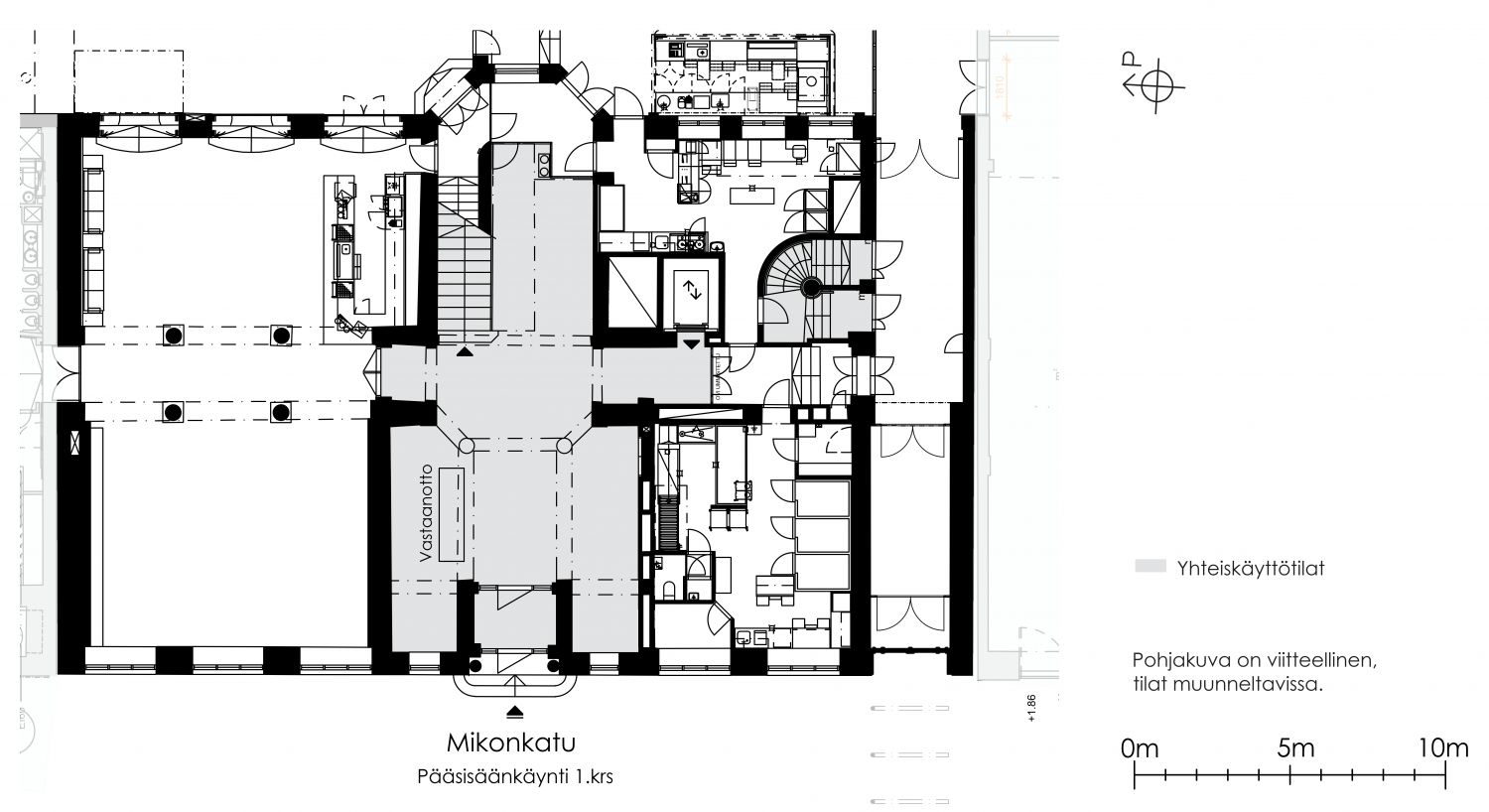
Upea sisääntuloaula vastaanottopalveluineen.
Osoite
Mikonkatu 17, 00100 Helsinki
Tilatyyppi
Toimistotilaa
90 m2
Pohjapiirros
Kiinteistö
Uudistuva arvokiinteistö loistavalla paikalla Helsingin ydinkeskustassa, Rautatientorin ääressä.
Helsingin Rautatietorin reunalle 1800-luvun lopulla valmistuneen Fennia-talon kulta-aika alkoi 1900-luvun alussa, kun Ruotsista muuttanut liikemies Karl Edvard Jonsson avasi tiloihin Grand Hotel Fennian. Hulppeasta hotellista näyttävine talvipuutarhoineen muodostui aikansa merkittävimpiä seurapiirin kohtaamispaikkoja.
Fennia-talo on ainutlaatuinen yhdistelmä historiallista arvokkuutta ja moderneja työtiloja. Innovatiiviset työtilat tukevat niin tiimityöskentelyä kuin yksilöllistä työrauhaa, tarjoten samalla ihanteelliset puitteet hybridityöskentelyyn ainutlaatuisessa ympäristössä. Mikonkatu 17 tarjoaa houkuttelevan sijainnin yrityksille, jotka haluavat viestiä nykyaikaista työkulttuuriaan historiallisesti merkittävässä miljöössä, jonka tarina on poikkeuksellisen kiinnostava.
Fennia-talo tullaan täydellisesti kunnostamaan vastaamaan yritysten nykyaikaisia toimistokäyttötarpeita. Talon uusbarokkinen miljöö upeine rappukäytävineen ja korkeine huoneineen tarjoaa upeat puitteet arvokasta ilmettä arvostavalle yritykselle.
Kaikille Fennia-korttelin kiinteistöille on myönnetty BREEAM In-Use Excellent -tason ympäristösertifikaatti ja koko kortteli toimii 100 % päästöttömällä energialla, kuten tuulisähköllä ja uusiutuvalla kaukolämmöllä.
Urban Collection
Mikonkatu 17 on yksi Spondan viidestä Urban Collection kohteesta. Nämä rakennukset tullaan peruskorjaamaan täysin, ja niiden on määrä valmistua 2026-2027. Huippuluokan tilat yhdistävät historiallisen viehätyksen moderniin toiminnallisuuteen. Rakennukset soveltuvat sekä suurille yrityksille että pienille start-upeille – tämä kokoelma tarjoaa monipuolisia toimistoratkaisuja, jotka vastaavat monenlaisiin liiketoimintatarpeisiin.
Tutustu Spondan Urban Collectioniin
Helsingin Rautatietorin reunalle 1800-luvun lopulla valmistuneen Fennia-talon kulta-aika alkoi 1900-luvun alussa, kun Ruotsista muuttanut liikemies Karl Edvard Jonsson avasi tiloihin Grand Hotel Fennian. Hulppeasta hotellista näyttävine talvipuutarhoineen muodostui aikansa merkittävimpiä seurapiirin kohtaamispaikkoja.
Fennia-talo on ainutlaatuinen yhdistelmä historiallista arvokkuutta ja moderneja työtiloja. Innovatiiviset työtilat tukevat niin tiimityöskentelyä kuin yksilöllistä työrauhaa, tarjoten samalla ihanteelliset puitteet hybridityöskentelyyn ainutlaatuisessa ympäristössä. Mikonkatu 17 tarjoaa houkuttelevan sijainnin yrityksille, jotka haluavat viestiä nykyaikaista työkulttuuriaan historiallisesti merkittävässä miljöössä, jonka tarina on poikkeuksellisen kiinnostava.
Fennia-talo tullaan täydellisesti kunnostamaan vastaamaan yritysten nykyaikaisia toimistokäyttötarpeita. Talon uusbarokkinen miljöö upeine rappukäytävineen ja korkeine huoneineen tarjoaa upeat puitteet arvokasta ilmettä arvostavalle yritykselle.
Kaikille Fennia-korttelin kiinteistöille on myönnetty BREEAM In-Use Excellent -tason ympäristösertifikaatti ja koko kortteli toimii 100 % päästöttömällä energialla, kuten tuulisähköllä ja uusiutuvalla kaukolämmöllä.
Urban Collection
Mikonkatu 17 on yksi Spondan viidestä Urban Collection kohteesta. Nämä rakennukset tullaan peruskorjaamaan täysin, ja niiden on määrä valmistua 2026-2027. Huippuluokan tilat yhdistävät historiallisen viehätyksen moderniin toiminnallisuuteen. Rakennukset soveltuvat sekä suurille yrityksille että pienille start-upeille – tämä kokoelma tarjoaa monipuolisia toimistoratkaisuja, jotka vastaavat monenlaisiin liiketoimintatarpeisiin.
Tutustu Spondan Urban Collectioniin
Sijainti
Kiinteistön vieressä sijaitsevat Rautatieasema ja Rautatientorin linja-autoasema takaavat erinomaisen julkisen liikenteen saavutettavuuden, jota täydentää korttelin alapuolella sijaitseva Helsingin yliopiston metroasema.
Pysäköinti
Autopaikat P-Eliel ja P-Kluuvi
Palvelut
Fennia-korttelissa on mittava määrä ravintoloita ja muita viihdepalveluita. Keskeinen sijainti ydinkeskustassa takaa sen, että kaikki kaupalliset ja yrityspalvelut sijaitsevat lyhyen kävelymatkan etäisyydellä. Työmatkapyöräilijöita varten löytyy pyörävarasto sekä sosiaalitilat.
Kulkuyhteydet
Lähimmälle bussipysäkille 100 m
Lähimmälle juna-asemalle 100 m
Lähimmälle metroasemalle 100 m
Lähimmälle raitiovaunupysäkille 200 m
Lentokentälle 30 min
Lähimmälle juna-asemalle 100 m
Lähimmälle metroasemalle 100 m
Lähimmälle raitiovaunupysäkille 200 m
Lentokentälle 30 min
Vapautuu
Kysy
Rakennusvuosi
1898
Kerros
1
Energiatehokkuusluokka
B2018 (liiketilat) D2018 (toimistot)
Ympäristöluokitus
BREEAM In-Use Excellent,GRESB Global Sector Leader 2025
Ota yhteyttä
Sponda Oy
Yrjönkatu 29C, 00100 Helsinki
Näytä puhelinnumero
020 43131
Laura Toponen
Senior Leasing Manager
Näytä puhelinnumero
+35850 413 4223
Sponda Oy
https://www.sponda.fiPyydä lisätietoa
