Vuokrataan toimistotilat - Helsinki
Tammasaarenlaituri 3, Ruoholahti, 00180 Helsinki #10805493
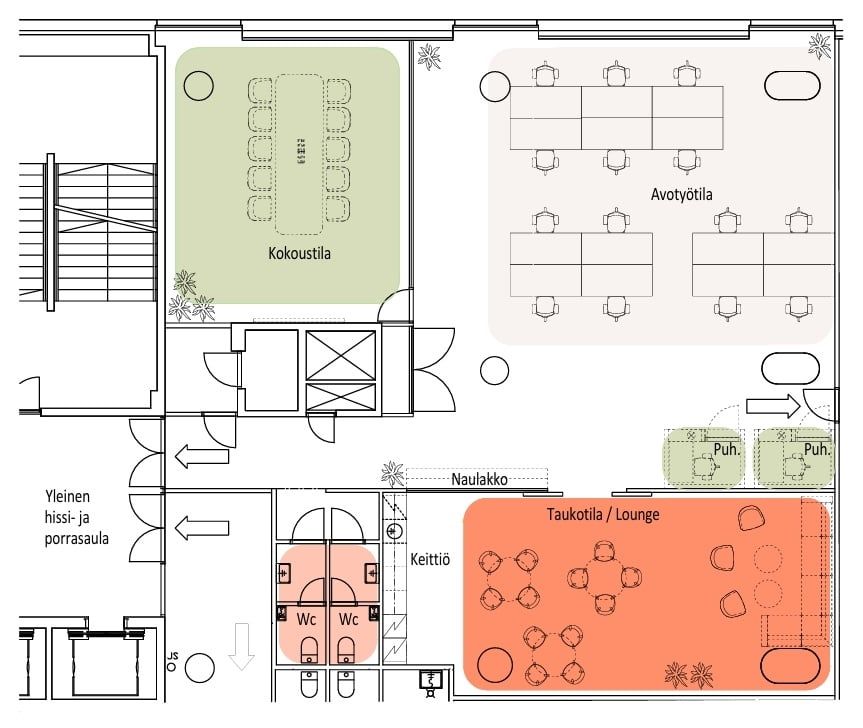
Nyt vuokrattavissa merellisessä Ruoholahdessa sijaitseva toimitila. Tästä toimistosta löytyy avotyötilaa sekä kokoustila. Tilassa on lisäksi iso lounge, keittiö ja wc-tilat. Toimisto on jo nyt moderni, mutta se tullaan räätälöimään asiakkaan tarpeiden mukaan.
Itämerentalo, Tammasaarenlaituri 3, on suunniteltu erityisesti avotoimistokäyttöön. Sen suunnitteli arkkitehti Einari Teräsvirta Alkolle, ja se valmistui 1971 ensimmäisenä avokonttoriksi rakennettuna toimistona Suomessa. Kiinteistössä toimii useita luovien alojen yrityksiä, ja Kaapelitehdas on lähellä. Itämerentalo sijaitsee hyvien kulkuyhteyksien varrella, vain viiden minuutin kävelymatkan päässä Ruoholahden metroasemalta. Paikan päällä on lounasravintola ja vuokrattavia autopaikkoja. Kiinteistöllä on BREEAM In-Use Very Good -ympäristösertifikaatti ja se käyttää 100 % tuulivoimaa.
Me Croisettella autamme teitä löytämään teille parhaat tilat! Olemme puolueettomia asiantuntijoita ja tunnemme toimitilamarkkinat, talot sekä tilat vankalla kokemuksella. Meillä on välityksessä kaikki toimitilat ja tiedämme niiden alustavat vuokratasot.
Tehtävämme on tehdä toimitilahaustanne onnistunut ja helppo. Saamme palkkiomme kiinteistönomistajalta, joten sinulle palvelumme on täysin maksuton.
Hissi
Croisette Real Estate Partner
Erottajankatu 5 A 6, 00130 Helsinki
Näytä puhelinnumero
+358 400 585 857
Croisette Vuokraus
Näytä puhelinnumero
+358400585857
