Vuokrataan toimistotilat - Helsinki
Tallberginkatu 2, Ruoholahti, 00180 Helsinki #10805486
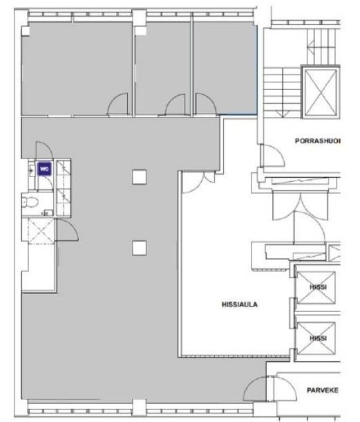
Muuttovalmis toimisto Ruoholahdessa nyt vuokrattavissa. Tilassa on avokonttori, kaksi wc:ä sekä muutama työ- ja neuvotteluhuone. Lisäksi tila jakaa naapuritoimiston kanssa yksityisen parvekkeen, jota vuokralainen voi käyttää vapaasti.
Tallberginkatu 2:n funkistalo tunnetaan parhaiten Tallbergintalona. Se toimii käsi kädessä viereisen Funkistyylinen Tallbergintalo sijaitsee kätevästi Ruoholahdessa, ja se jakaa yhteisen lounasravintolan ja vastaanoton viereisen Itämerentalon kanssa. Kiinteistöllä on myös yhteinen lastauslaituri.Sijainti Tallberginkadun ja Porkkalankadun risteyksessä tarjoaa erinomaiset julkiset liikenneyhteydet, kuten Ruoholahden metroaseman ja useita bussilinjoja. Pysäköintitilaa löytyy viereisestä parkkihallista ja Ruoholahden kauppakeskuksen pysäköintihallista.Tallbergintalossa on avautunut POOL-joustotilaa 3. kerrokseen. Kiinteistö on saanut BREEAM In-Use -ympäristösertifioinnin Very Good -tason, ja sen energia on täysin hiilineutraalia, sillä käytössä on kiertolämpö ja 100% tuulivoima.
Me Croisettella autamme teitä löytämään teille parhaat tilat! Olemme puolueettomia asiantuntijoita ja tunnemme toimitilamarkkinat, talot sekä tilat vankalla kokemuksella. Meillä on välityksessä kaikki toimitilat ja tiedämme niiden alustavat vuokratasot.
Tehtävämme on tehdä toimitilahaustanne onnistunut ja helppo. Saamme palkkiomme kiinteistönomistajalta, joten sinulle palvelumme on täysin maksuton.
Hissi
Croisette Real Estate Partner
Erottajankatu 5 A 6, 00130 Helsinki
Näytä puhelinnumero
+358 400 585 857
Croisette Vuokraus
Näytä puhelinnumero
+358400585857
