Vuokrataan toimistotilat - Helsinki
Hämeentie 19, Kallio, 00500 Helsinki #10805452
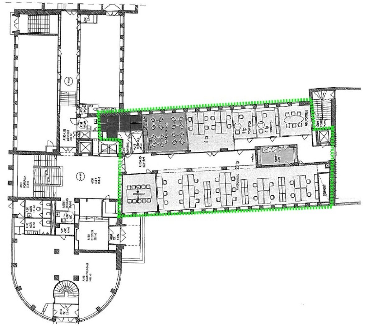
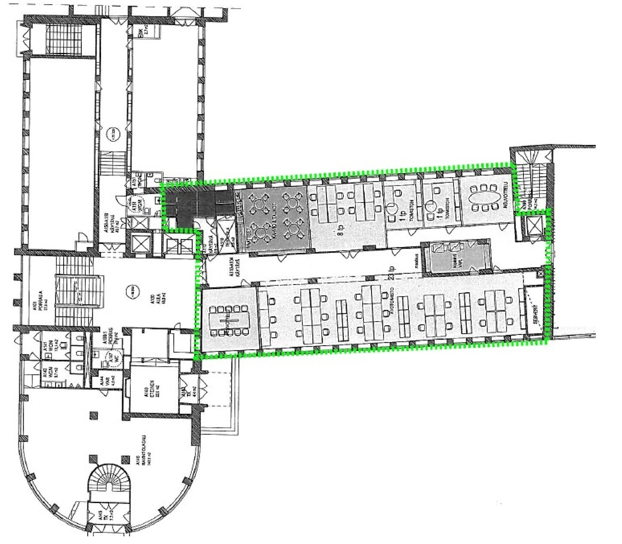
Nyt vapaana valoisa toimitila trendikkäässä Kalliossa. Toimiston molemmin puolin sijaitsevista ikkunoista hohkaa hyvin luonnonvaloa, joten valoa riittää toimistossa. Tässä toimitilassa on avara avokonttori sekä pienempiä työ- ja neuvotteluhuoneita. Tilasta löytyy myös hyvin varusteltu taukohuone keittiöllä.
Tämä vuonna 1933 valmistunut funkkistalo yhdistää vaikuttavan arkkitehtuurin ja modernin, nykypäivän tarpeisiin mukautetun talotekniikan. Vilkkaan Hämeentien varressa sijaitseva toimitilarakennus on uudistettu kunnioittaen sen alkuperäistä arkkitehtuuria ja historiaa. Hämeentie 19 valloittaa vieraansa menneen ajan hienostuneisuudella, mutta toimii tämän päivän tekniikalla. Kiinteistössä on muun muassa aulapalvelu ja täysin uudistettu lounasravintola. Lisäksi Hämeentielle on myönnetty BREEAM In-Use -sertifikaatti, mikä osoittaa kiinteistön ympäristöystävällisyyden. Huomioithan, että kaikki kuvat eivät välttämättä ole juuri tästä toimitilasta.
Me Croisettella autamme teitä löytämään teille parhaat tilat! Olemme puolueettomia asiantuntijoita ja tunnemme toimitilamarkkinat, talot sekä tilat vankalla kokemuksella. Meillä on välityksessä kaikki toimitilat ja tiedämme niiden alustavat vuokratasot.
Tehtävämme on tehdä toimitilahaustanne onnistunut ja helppo. Saamme palkkiomme kiinteistönomistajalta, joten sinulle palvelumme on täysin maksuton.
Croisette Real Estate Partner
Erottajankatu 5 A 6, 00130 Helsinki
Näytä puhelinnumero
+358 400 585 857
Croisette Vuokraus
Näytä puhelinnumero
+358400585857
