Vuokrataan toimistotilat - Helsinki
Porkkalankatu 7, Ruoholahti, 00180 Helsinki #10805262
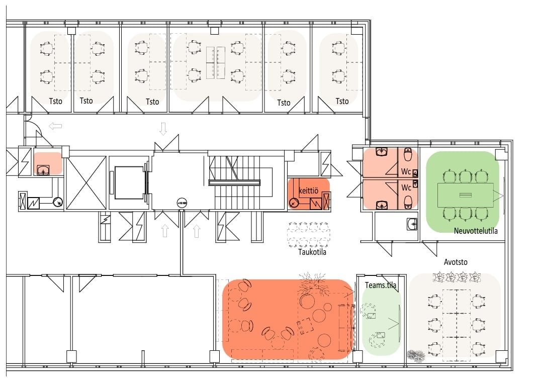
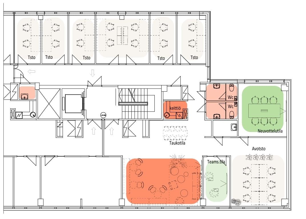
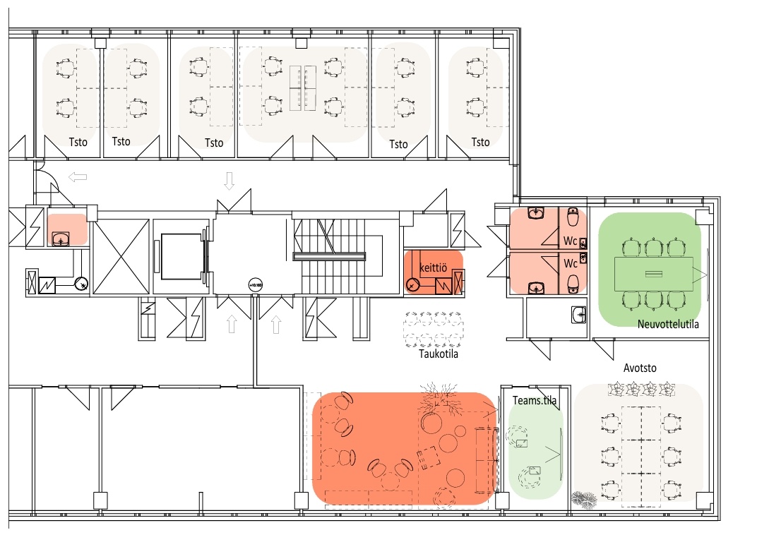
Monikäyttöiset toimitilat ovat nyt vapautumassa Ruoholahdessa. Tilassa on hyvät työ- ja neuvotteluhuoneet sekä siistit wc- ja taukotilat. Tämä hyvin suunniteltu toimisto soveltuu monille eri yrityksille.
Erinomaiset toimitilat Ruoholahden liikekeskuksessa tarjoavat loistavia mahdollisuuksia. Kaikki oleellinen, kuten julkiset kulkuvälineet, lounasravintolat ja Ruoholahden kauppakeskus, sijaitsevat lähellä. Talolla on myös myönnetty BREEAM IN-Use -ympäristösertifikaatti, mikä osoittaa sen ympäristöystävällisyyttä. Talon julkisivu on myös korjattu vuonna 2022.
Me Croisettella autamme teitä löytämään teille parhaat tilat! Olemme puolueettomia asiantuntijoita ja tunnemme toimitilamarkkinat, talot sekä tilat vankalla kokemuksella. Meillä on välityksessä kaikki toimitilat ja tiedämme niiden alustavat vuokratasot.
Tehtävämme on tehdä toimitilahaustanne onnistunut ja helppo. Saamme palkkiomme kiinteistönomistajalta, joten sinulle palvelumme on täysin maksuton.
Hissi
Croisette Real Estate Partner
Erottajankatu 5 A 6, 00130 Helsinki
Näytä puhelinnumero
+358 400 585 857
Croisette Vuokraus
Näytä puhelinnumero
+358400585857
