Vuokrataan - Helsinki
Runeberginkatu 5, Kamppi, 00100 Helsinki #10805205
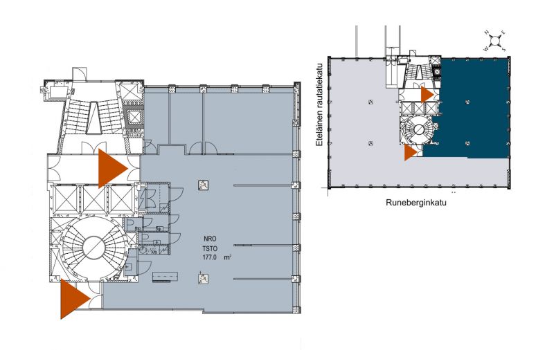
Vuokrataan muuttovalmis viidennen kerroksen 177m2 toimisto keskellä Kamppia, avotilaa ja huoneita. Toimistoon kaksi sisäänkäyntiä. Vapautuu sopimuksen mukaan.
Toimistokerroksista on hissiyhteys autohalliin. Pyöräilijöille pyöräparkit ja suihkutilat. Kiinteistössä on jäähdytys puhallinkonvektoreilla.
Kiinteistössä on tehty julkisivun ja yleisten tilojen kunnostustöitä kunnioittaen talon henkeä ja arkkitehtuuria. Pyöräilijöille pyöräparkit ja suihkutilat.
Kysy lisää: jouko.raitanen@rhg.fi/0504695444
RHG Real Estate
Hämeenkatu 2 B20, 20500 Turku
Näytä puhelinnumero
020 734 4020
Jouko Raitanen
Näytä puhelinnumero
050 469 5444
