Vuokrataan toimistotilat, varastotilat - Helsinki
Nilsiänkatu 15, Vallila, 00510 Helsinki #10804912
Monikäyttöistä tilaa Valleywoodissa Helsingin Vallilassa
Osoite
Nilsiänkatu 15, 00510 Helsinki
Tilatyyppi
Toimistotilaa
160 - 3814 m2
Varastotilaa
440 - 882 m2
Yhteensä
600 - 4696 m2
Kiinteistö
Vuokrattavana monikäyttöistä tilaa Valleywoodissa Helsingin Vallilassa
Kiinteistössä on neljä kerrosta, joissa vuokrattavaa tilaa on yhteensä 4696,5 m². Kerrokset on mahdollista vuokrata yhtenä kokonaisuutena tai erikseen. Kaikki kerrokset voidaan myös jakaa pienempiin osiin. Toimistotilat ovat korkeita; korkeus vaihtelee pääosin 2,7 ja 4 metrin välillä.
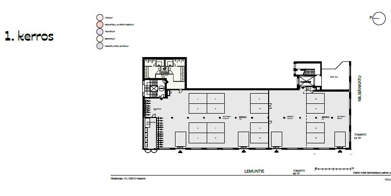
1. kerroksessa on varasto ja tuotantotilaa sekä autohalli, joiden yhteispinta-ala on 880 m². Tuotanto- ja varastotilaa on noin 440 m².
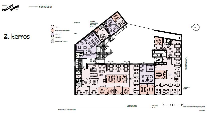
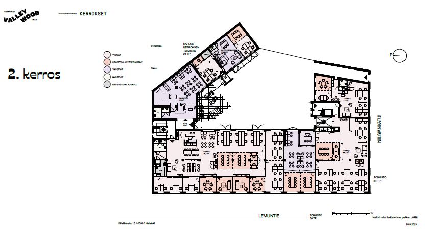
2. kerroksessa on toimistotilaa 1330 m².
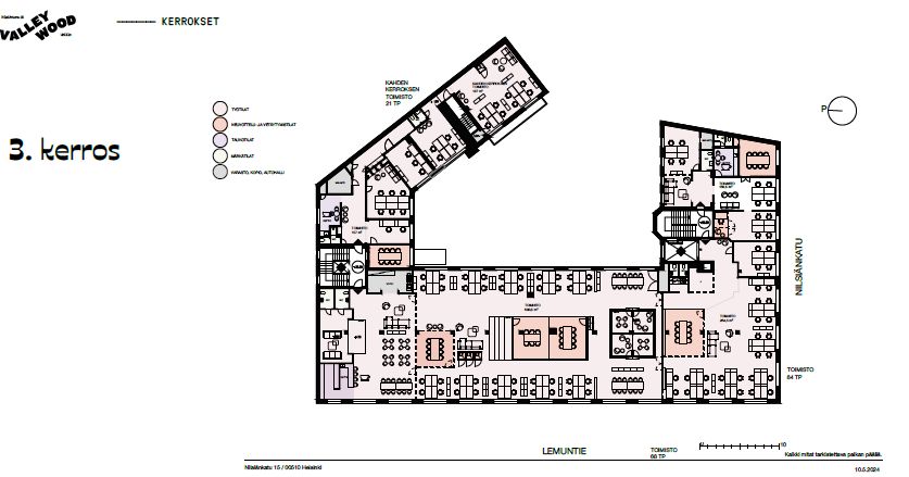
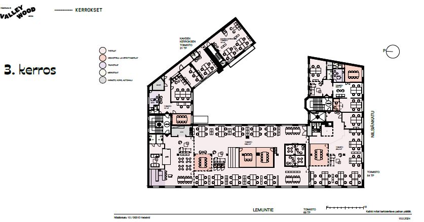
3. kerroksessa on toimistotilaa 1371 m².
4. kerroksessa on toimistotilaa 1113 m².
Talo on historiallinen. Se on rakennettu pääosin vuonna 1938-1939, pihasiipi vuonna 1946 ja neljäs kerros vuonna 1956. Siinä on punatiilinen julkisivu, isot ristikkoikkunat ja nostalgisen tyylikkäät tilat, jotka on rakennettu alun perin teollisuustiloiksi.
Tilat räätälöidään vuokralaisten tarpeiden mukaan. Tilat soveltuvat moneen eri tarkoitukseen.
Vallila on nopeasti kehittyvä kaupunginosa, jossa palvelut ovat lisääntyneet nopeasti. Liikenneyhteydet ovat myös alueella erinomaiset.
Logistila on valtakunnallisesti paikallinen toimitilavälittäjä, joka tuntee alueesi tilatarjonnan. Ota yhteyttä, niin löydämme sinulle sopivan ratkaisun. Palvelumme on tilanhakijalle aina maksuton.
Kiinteistössä on neljä kerrosta, joissa vuokrattavaa tilaa on yhteensä 4696,5 m². Kerrokset on mahdollista vuokrata yhtenä kokonaisuutena tai erikseen. Kaikki kerrokset voidaan myös jakaa pienempiin osiin. Toimistotilat ovat korkeita; korkeus vaihtelee pääosin 2,7 ja 4 metrin välillä.
1. kerroksessa on varasto ja tuotantotilaa sekä autohalli, joiden yhteispinta-ala on 880 m². Tuotanto- ja varastotilaa on noin 440 m².
2. kerroksessa on toimistotilaa 1330 m².
3. kerroksessa on toimistotilaa 1371 m².
4. kerroksessa on toimistotilaa 1113 m².
Talo on historiallinen. Se on rakennettu pääosin vuonna 1938-1939, pihasiipi vuonna 1946 ja neljäs kerros vuonna 1956. Siinä on punatiilinen julkisivu, isot ristikkoikkunat ja nostalgisen tyylikkäät tilat, jotka on rakennettu alun perin teollisuustiloiksi.
Tilat räätälöidään vuokralaisten tarpeiden mukaan. Tilat soveltuvat moneen eri tarkoitukseen.
Vallila on nopeasti kehittyvä kaupunginosa, jossa palvelut ovat lisääntyneet nopeasti. Liikenneyhteydet ovat myös alueella erinomaiset.
Logistila on valtakunnallisesti paikallinen toimitilavälittäjä, joka tuntee alueesi tilatarjonnan. Ota yhteyttä, niin löydämme sinulle sopivan ratkaisun. Palvelumme on tilanhakijalle aina maksuton.
Vapautuu
Kysy
Kerros
1-4
Ota yhteyttä
Logistila Oy
Kylätie 11-13, 00320 HELSINKI
Rauno Nurmi
Näytä puhelinnumero
050 5522 683
Pyydä lisätietoa
