Vuokrataan toimistotilat - Espoo
Vaisalantie 6, C-Talo, Otaniemi, 02130 Espoo #10804882
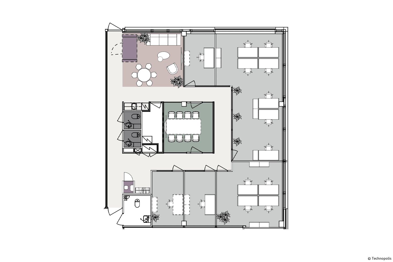
Vuokrataan Technopolis Otaniemessä Espoossa muuttovalmis 215 m² monitilatoimisto Innopoli 3 C-talon neljännestä kerroksesta. Toimistossa on useita huoneita ja neuvottelutiloja sekä omat keittiö- ja wc-tilat. Toimitilan ilmastointi tarjoaa miellyttävän lämpötilan kaikkina vuodenaikoina, ja ikkunoista avautuu vehreät näkymät Otaniemen luonnonsuojelualueelle. Toimitilasta on saatavilla valmis sovituskuva, josta näkee tarkemman työpistemäärän ja tilan toiminnot.
Tila on vuokrattavissa kalustettuna, ja työtilan suunnittelu- sekä muuttopalvelut ovat saatavilla muuton tueksi. Ota yhteyttä ja tule tutustumaan paikan päälle.
Technopolis Otaniemi sijaitsee lähellä Aalto-yliopiston metroasemaa, pikaraitiotien ja bussireittien varrella. Lisäksi Suomen vilkkain liikenneväylä Kehä I kulkee aivan kampuksen vierestä. Parkkipaikkoja on erittäin hyvin saatavilla autoilijoiden tarpeisiin.
Technopolis Otaniemen kampuksen monipuolisten palveluiden ansiosta sinä voit keskittyä liiketoimintaasi. Palveluihin kuuluvat ystävällinen aulapalvelu, monipuolinen valikoima kokoustiloja, useita erinomaisia ravintoloita ja useampi hyvin varusteltu kuntosali. Lisäksi kampukselta löytyy kampaamoita, hammasklinikka, eläinlääkäriasema ja kaksi autopesulaa.
Technopolis
Elektroniikkatie 8 FIN-90590 Oulu
Näytä puhelinnumero
046 712 0000
Heta Lindman
Näytä puhelinnumero
050 336 5815
Hanna Peltola
Näytä puhelinnumero
050 514 3746
Technopolis on työympäristöjen asiantuntija. Tarjoamme joustavia ja tehokkaita toimitiloja sekä niihin liittyviä palveluita. Hoidamme kaiken työtilojen suunnittelusta sekä aula- ja kokouspalveluista ravintoloihin ja siivoukseen. Asiakaskokemus ja sen kehittäminen ovat toimintamme ytimessä. Meillä on 14 kampusta, joissa toimii 1200 asiakasyritystä ja niiden 35 000 työntekijää neljässä maassa Euroopassa.
https://technopolisglobal.com/fi