Vuokrataan toimistotilat - Espoo
Ruukinkuja 4, Kivenlahti, 02330 Espoo #10804845
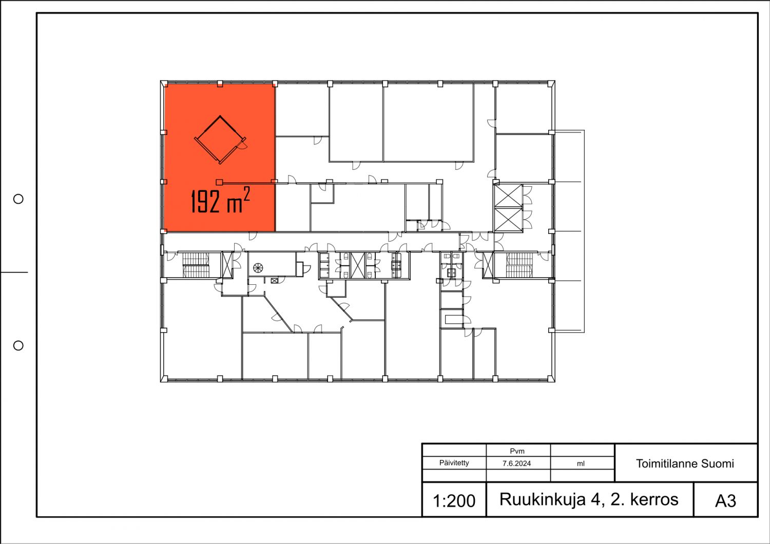
Vuokrataan toimistotila 192 m2 hissillisen rakennuksen toisessa kerroksessa. Tilassa on oma iso keittiö, wc:t yhteisellä käytävällä.
Siisti ja hyväkuntoinen toimitilakiinteistö kehittyvällä alueella Espoon Kiviruukissa (Kivenlahden teollisuusalue) on valmistunut 1980-luvulla. Kiviruukkiin on hyvät kulkuyhteydet: se sijaitsee aivan Länsiväylän kupeessa Kehä III:n sisäpuolella. Tavarahissi ja henkilöhissi kulkevat kerroksiin 1-3. Pihalla on 60 autopaikkaa.
Lisätietoja 020 7290 710. Lisää kohteita www.premises.fi.
Kohteella ei ole lain edellyttämää energiatodistusta tai energialuokka ei tiedossa.Kerros: 2
CRE PREMISES
Puh. Näytä puhelinnumero 020 7290 710
Vantaankoskentie 14
01670 VANTAA
