Vuokrataan toimistotilat - Helsinki
Porkkalankatu 20, Ruoholahti, 00180 Helsinki #10804675
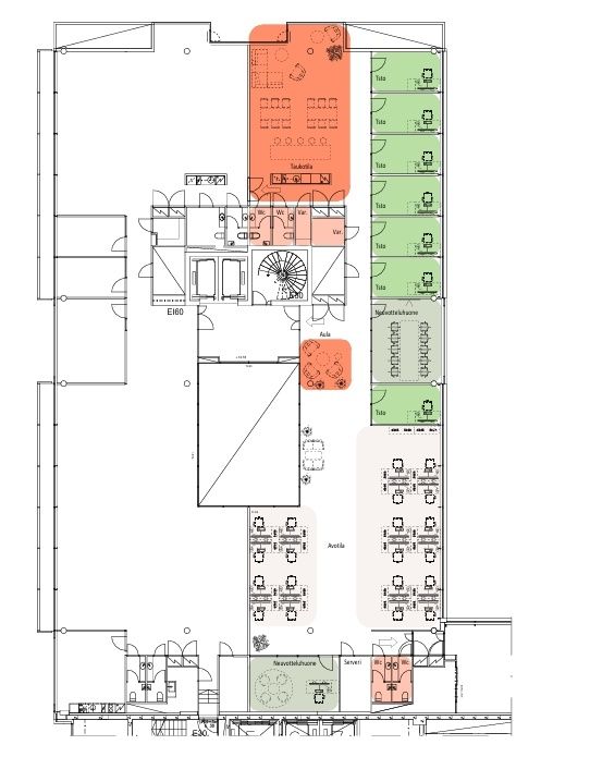
Nyt vapautumassa modernit ja siistit toimitilat Ruoholahdessa. Tilat sisältävät avokonttorin sekä pienempiä työ- ja neuvotteluhuoneita. Lisäksi tilasta löytyy hyvät taukotilat, jotka on varustettu keittiöllä ja wc-tiloilla.
Ruoholahden Poijut sijaitsee erinomaisella paikalla Ruoholahden kauppakeskuksen vieressä, hyvien palvelujen äärellä. Ruoholahdessa on loistavat julkiset kulkuyhteydet, ja sijainti on myös kätevä työmatkapyöräilijöille. Autoileville autopaikkoja on saatavilla Ruoholahden parkkihallista. Talolla on myös BREEAM Excellent -sertifikaatti, mikä osoittaa sen ympäristöystävällisyyttä. Huomioithan, että sisätilakuvat eivät välttämättä kuvaa tätä toimistoa.
Me Croisettella autamme teitä löytämään teille parhaat tilat! Olemme puolueettomia asiantuntijoita ja tunnemme toimitilamarkkinat, talot sekä tilat vankalla kokemuksella. Meillä on välityksessä kaikki toimitilat ja tiedämme niiden alustavat vuokratasot.
Tehtävämme on tehdä toimitilahaustanne onnistunut ja helppo. Saamme palkkiomme kiinteistönomistajalta, joten sinulle palvelumme on täysin maksuton.
Hissi
Croisette Real Estate Partner
Erottajankatu 5 A 6, 00130 Helsinki
Näytä puhelinnumero
+358 400 585 857
Croisette Vuokraus
Näytä puhelinnumero
+358400585857
