Vuokrataan - Järvenpää
Minkkikatu 1-3, 04430 Järvenpää #10804631
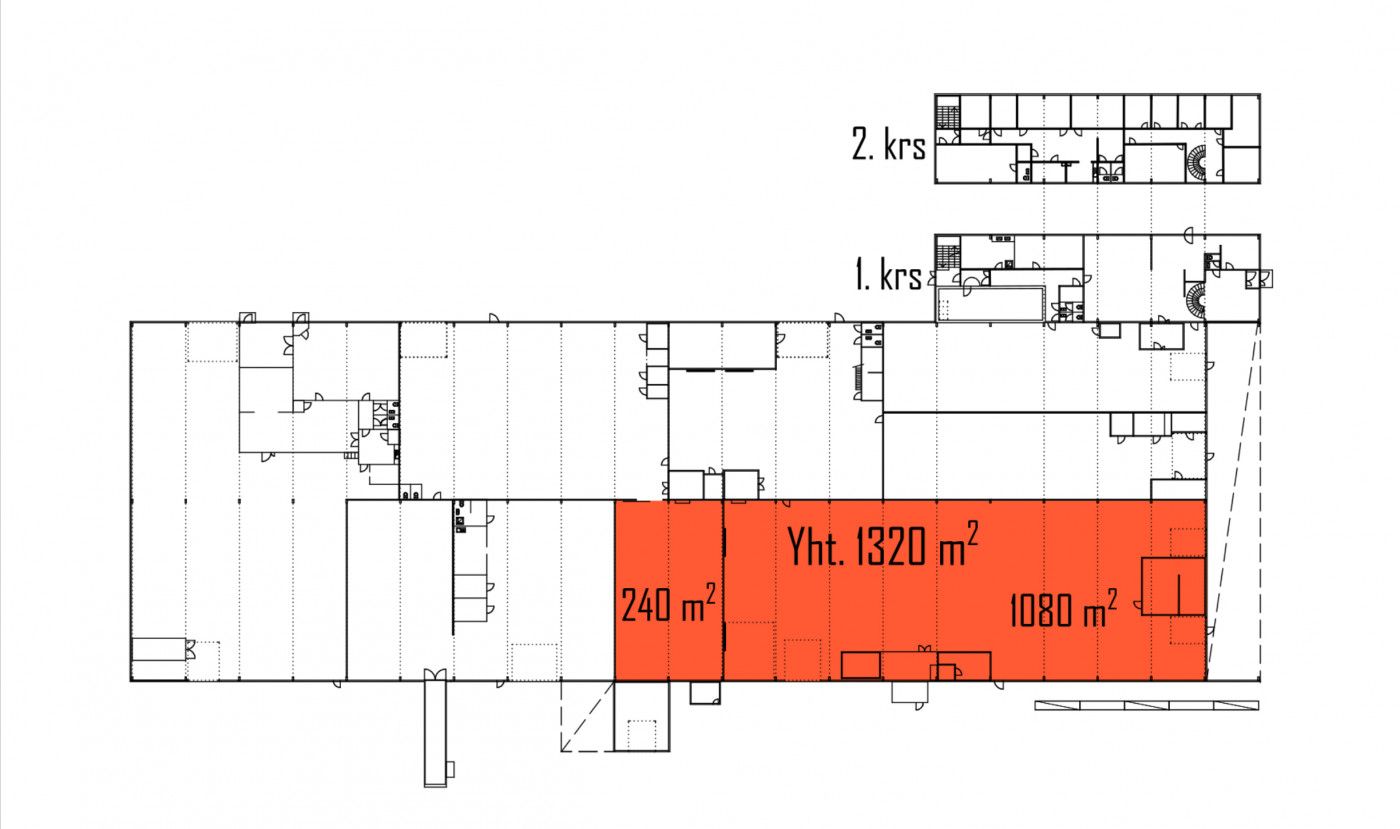
Vuokrataan tuotanto/teollisuus- tai varastotila 1320 m², jossa erillinen väliseinällä kahteen osaan jaettu toimistotila 44 m² sekä keittiönurkkaus ja wc. Lisäksi 125 m² toimistotilaa vuokrattavissa erikseen toimistosiivestä.
Tilan vapaa korkeus on 4,2 m, lattia on betonia. Ulos johtaa kaksi nosto-ovea mitoiltaan 3,00 m (leveys) x 3,86 m (korkeus) ja yksi nosto-ovi kooltaan 4,00 m (leveys) x 4,50 m (korkeus). Käytössä on pöytänosturi (8 tn). Ei lastauslaituria. Piha-alue on aidattu.
Matkaajan hallina tunnettu kiinteistö on valmistunut 1980-luvulla Järvenpäähän. Se sijaitsee sujuvasti Lahdenväylän ja Vanhan Lahdentien välissä Mikonpellon teollisuusalueella. Kokonaispinta-alaltaan 5000 m²:n kokoisessa rakennuksessa on öljylämmitys. Asfaltoidulla piha-alueella riittää tilaa pysäköintiin ja vaikka yksittäisten konttien säilyttämiseen.
Kysy lisää: jouko.raitanen@rhg.fi/0504695444
RHG Real Estate
Hämeenkatu 2 B20, 20500 Turku
Näytä puhelinnumero
020 734 4020
Jouko Raitanen
Näytä puhelinnumero
050 469 5444
