Vuokrataan toimistotilat - Helsinki
Helsingin Eteläesplanadi 18, Eteläesplanadi 18, Helsinki Keskusta - Etu-Töölö, 00130 Helsinki #10804601
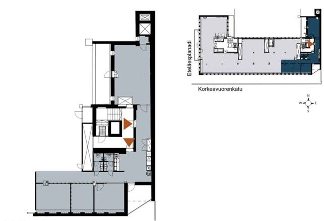
Vuokrattavana 8. kerroksen 128m2 toimistohuoneisto, jossa on erikokoisia huoneita sekä omat keittiö- ja wc-tilat. Kiinteistön hissi menee 7. kerrokseen, josta on porrasyhteys 8. kerrokseen.
Osoite
Eteläesplanadi 18, 00130 Helsinki
Tilatyyppi
Toimistotilaa
128 m2
Muuta
Arkkitehti J. S. Sirénin suunnittelema arvokiinteistö Esplanadin puiston reunalla on valmistunut vuonna 1935 ja saneerattu huippumoderniksi pääkonttoriksi vuonna 2017. Kiinteistössä on mm. jäähdyttävä ilmanvaihto ja valokuituyhteys, lisäksi se on pääosin esteetön joten se soveltuu hyvin myös liikuntarajoitteisille.
Kiinteistössä on vuokralaisena useita yrityksiä kuten SEB, jonka tyylikkäät tilat edustavat viimeisimpiä toimitilatrendejä, kohteen alkuperäistä tunnelmaa unohtamatta. Suuret ikkunapinnat tuovat luonnonvaloa kerroksiin, jonne noustaan sisääntuloaulan atriumin kautta. Henkilökunnan yhteiset tilat ovat avarat ja toteutettu monitilaratkaisuin. Neuvottelutilat edustavat viimeisintä tekniikkaa.
Sijainti perinteikkään Esplanadinpuiston varrella tekee monille tästä toimitilakohteesta erityisen halutun. Kiinteistö sijaitsee Helsingin ydinkeskustan palveluiden äärellä, lähellä runsaita lounas- ja kahvilavaihtoehtoja sekä julkisen liikenteen yhteyksiä. Pysäköintivaihtoehtoja tarjoavat mm. Stockmannin, Erottajan, Kluuvin ja Kampin pysäköintilaitokset, jotka sijaitsevat lyhyen kävelymatkan päässä.
Kiinteistössä on vuokralaisena useita yrityksiä kuten SEB, jonka tyylikkäät tilat edustavat viimeisimpiä toimitilatrendejä, kohteen alkuperäistä tunnelmaa unohtamatta. Suuret ikkunapinnat tuovat luonnonvaloa kerroksiin, jonne noustaan sisääntuloaulan atriumin kautta. Henkilökunnan yhteiset tilat ovat avarat ja toteutettu monitilaratkaisuin. Neuvottelutilat edustavat viimeisintä tekniikkaa.
Sijainti perinteikkään Esplanadinpuiston varrella tekee monille tästä toimitilakohteesta erityisen halutun. Kiinteistö sijaitsee Helsingin ydinkeskustan palveluiden äärellä, lähellä runsaita lounas- ja kahvilavaihtoehtoja sekä julkisen liikenteen yhteyksiä. Pysäköintivaihtoehtoja tarjoavat mm. Stockmannin, Erottajan, Kluuvin ja Kampin pysäköintilaitokset, jotka sijaitsevat lyhyen kävelymatkan päässä.
Vapautuu
Kysy
Rakennusvuosi
1935
Kerros
8
Ota yhteyttä
Juhola Asset Management Oy
Itsehallintokuja 4 02600 Espoo
Näytä puhelinnumero
040 4551 390
Leena Juhola
Pyydä lisätietoa
