Vuokrataan toimistotilat - Tampere
Eteläpuisto 2C, Hämeenpuisto, 33200 Tampere #10804582
Klingendahlissa remontoitua toimistotilaa
Osoite
Eteläpuisto 2C, 33200 Tampere
Tilatyyppi
Toimistotilaa
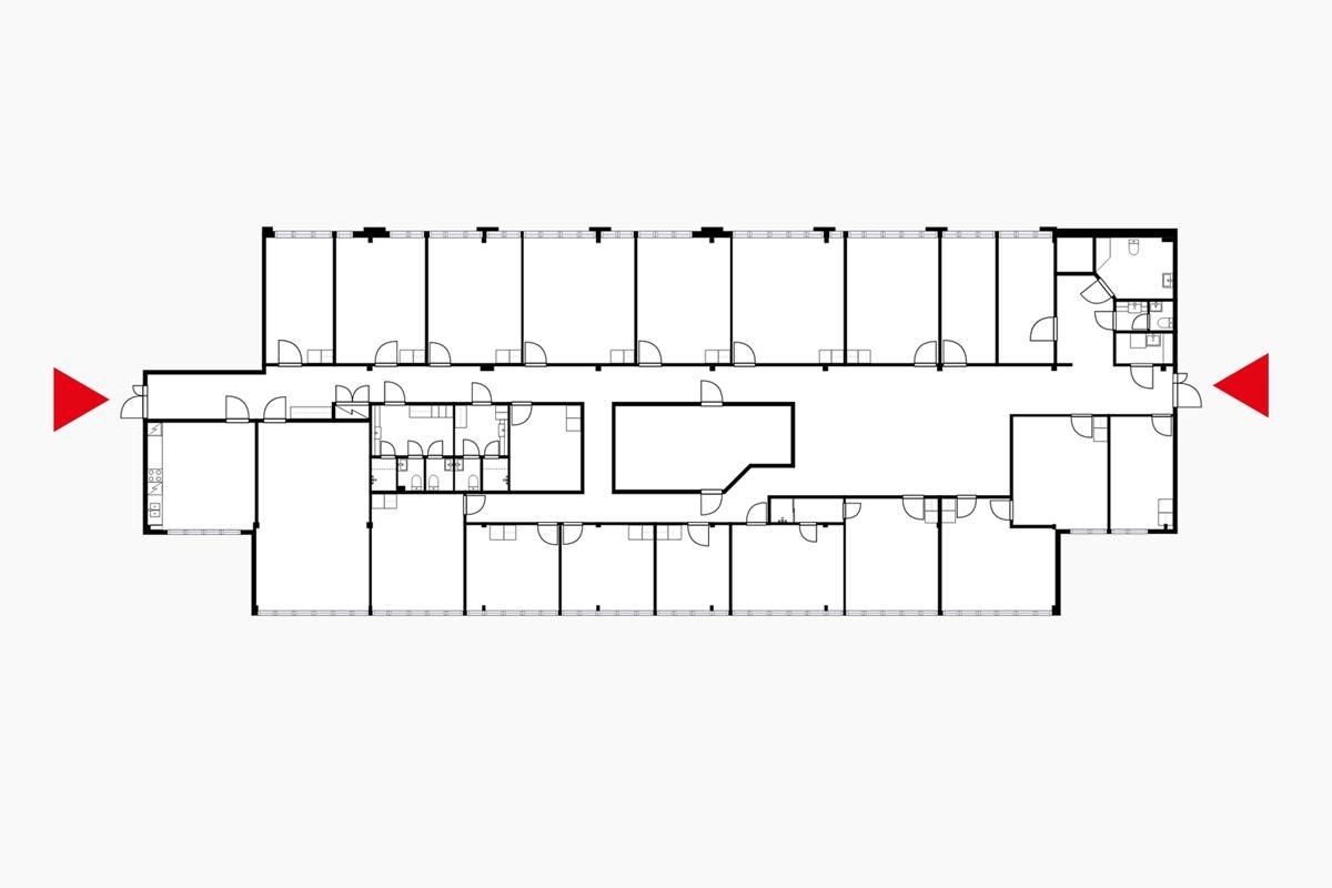
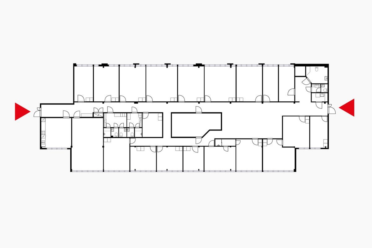
591 m2
Kiinteistö
Vuokrattavissa toimistotilaa Klingendahlista
Upea punatiilinen rakennus Eteläpuiston ja Pyhäjärven rantamaisemissa Hämeenpuistossa. Tämä vanha teollisuuskiinteistö on osa Tampereen historiaa ja sen sisäpihalla sijaitseva suojeltu punatiilinen piippu on yksi Tampereen keskusta-alueen maamerkeistä.
Kiinteistö on hyvin saavutettavissa. Rautatieasemalle on matkaa noin 1,5 km, linja-autoasemalle n. 1 km ja Tampere-Pirkkalan lentoasemalle n. 14 km. Kaikki keskustan palvelut lähettyvillä. Useita paikallisbusseja kulkee vierestä ja raitiotiepysäkille lyhyt kävelymatka
Toimitila:
Nyt vapaana on 5. kerroksesta toimistokokonaisuus pinta-alaltaan 591 m². Tämä tila on vasta remontoitu ja siistikuntoinen. Hienot korkeat huoneet ja suuret ikkunat tuovat luonnonvaloa. Ikkunat Hämeenpuistoon ja sisäpihalle. Vuokrattavissa on myös 4 autopaikkaa ja kadun varressa reilusti maksullista pysäköintitilaa.
Kiinteistöyhtiössä on tehty ilmanvaihtoremontti vuosien 2015-2016 aikana, jolloin ilmanvaihtoon lisättiin myös jäähdytys.
Ole yhteydessä, mennään tutustumaan tähän tilaan paikan päälle!
Upea punatiilinen rakennus Eteläpuiston ja Pyhäjärven rantamaisemissa Hämeenpuistossa. Tämä vanha teollisuuskiinteistö on osa Tampereen historiaa ja sen sisäpihalla sijaitseva suojeltu punatiilinen piippu on yksi Tampereen keskusta-alueen maamerkeistä.
Kiinteistö on hyvin saavutettavissa. Rautatieasemalle on matkaa noin 1,5 km, linja-autoasemalle n. 1 km ja Tampere-Pirkkalan lentoasemalle n. 14 km. Kaikki keskustan palvelut lähettyvillä. Useita paikallisbusseja kulkee vierestä ja raitiotiepysäkille lyhyt kävelymatka
Toimitila:
Nyt vapaana on 5. kerroksesta toimistokokonaisuus pinta-alaltaan 591 m². Tämä tila on vasta remontoitu ja siistikuntoinen. Hienot korkeat huoneet ja suuret ikkunat tuovat luonnonvaloa. Ikkunat Hämeenpuistoon ja sisäpihalle. Vuokrattavissa on myös 4 autopaikkaa ja kadun varressa reilusti maksullista pysäköintitilaa.
Kiinteistöyhtiössä on tehty ilmanvaihtoremontti vuosien 2015-2016 aikana, jolloin ilmanvaihtoon lisättiin myös jäähdytys.
Ole yhteydessä, mennään tutustumaan tähän tilaan paikan päälle!
Vapautuu
Kysy
Kerros
5.
Ota yhteyttä
LogisTila Oy
Kauppakatu 14, 33210 TAMPERE
Tuomas Lehtinen
Näytä puhelinnumero
044 491 5961
Pyydä lisätietoa
