Vuokrataan toimistotilat - Helsinki
Vuorikatu 20, Kaisaniemi, 00100 Helsinki #10804581
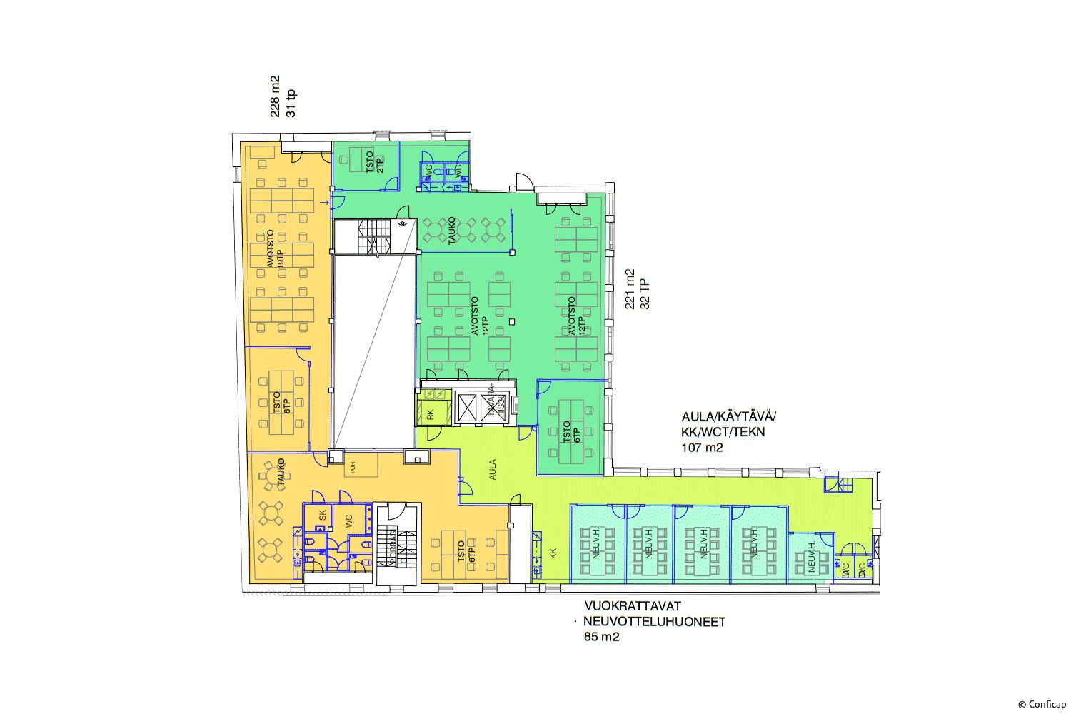
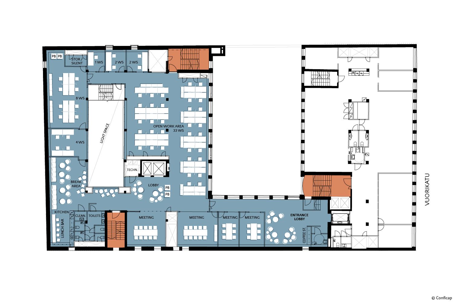
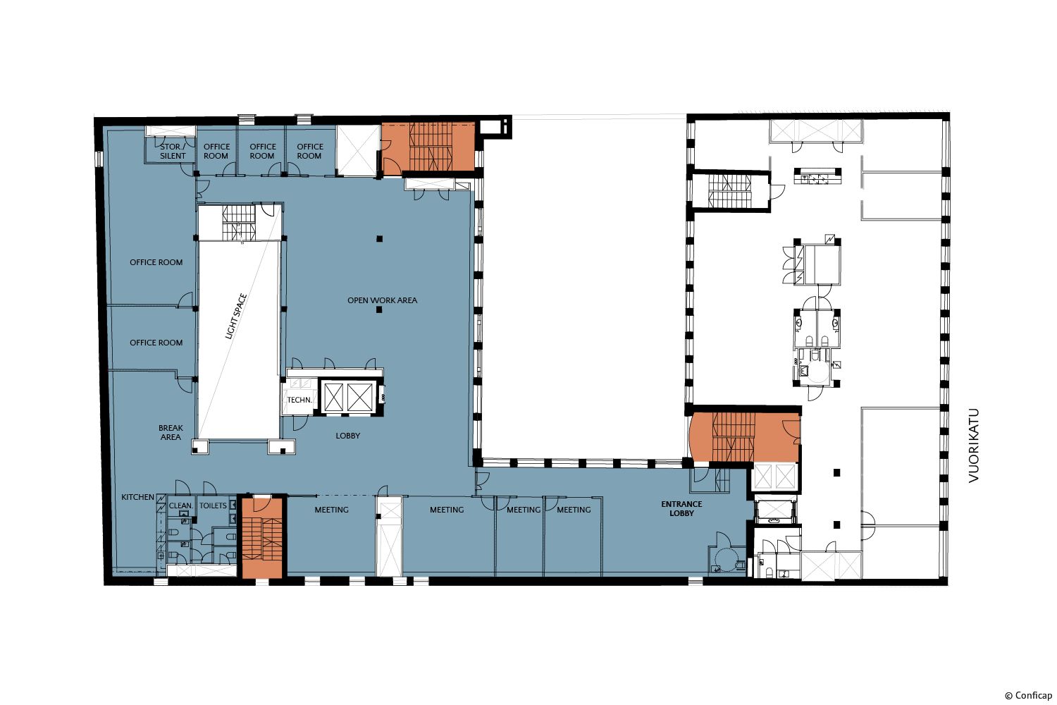
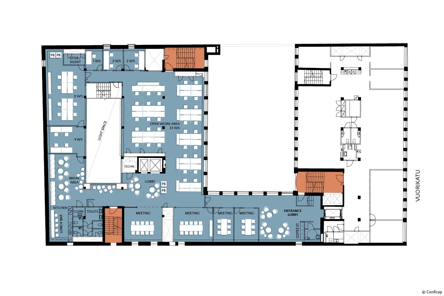
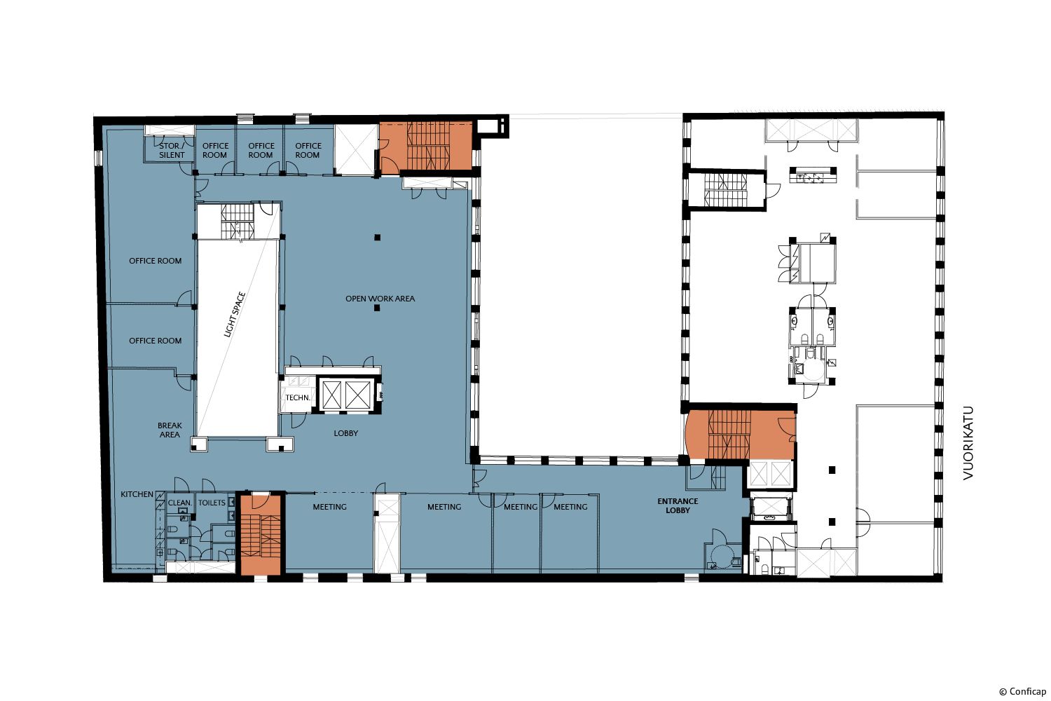
Muuttovalmis moderni toimistotila rakennuksen 4. kerroksessa, joka on optimaalinen noin 40-50 työpisteelle. Tilassa on neuvottelu- ja tiimityötiloja sekä avotyöpisteille paikkoja. Mukava lounge keittiöineen taukoiluun ja yhdessä oloon. Valokuilu keskellä tilaa tuo ilmavuutta toimistoon ja mukavat näkymät sisäpihalle piristävät päivää. Aivan loistava sijainti Helsingin ytimessä. Muutamalla askeleella Yliopiston metroasemalle.
Conficap Oy
Salomonkatu 17 A, 00100 Helsinki
Näytä puhelinnumero
010 400 6440
Visa Heiskanen
Näytä puhelinnumero
010 400 6464
Conficapin kiinteistöliiketoiminta koostuu kiinteistöomistuksista Suomen kasvukeskusten parhailla paikoilla sekä osuuksista yhteissijoituksissa ja kiinteistörahastoissa sekä kotimaassa että ulkomailla. Vuokrattavana on toimisto- ja logistiikkatilaa pääkaupunkiseudulla sekä muissa Suomen kasvavissa keskuksissa.
https://conficaptoimitilat.fi/