Vuokrataan toimistotilat - Helsinki
Kaisaniemenkatu 1, Helsinki, Suomi, Keskusta, 00100 Helsinki #10804447
Tämä kohde Helsingin ydinkeskustassa, vain muutaman askeleen päässä Rautatieasemasta ja keskellä maan kattavimpia palveluja, tarjoaa moderneja ja joustavia toimitiloja merkittävässä arvokiinteistössä.
Osoite
Kaisaniemenkatu 1, Helsinki, Suomi, 00100 Helsinki
Tilatyyppi
Toimistotilaa
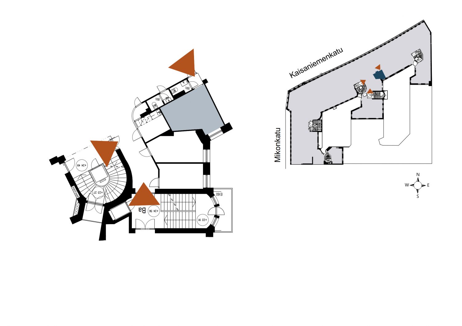
20 m2
Kiinteistö
Mikonkatu 13
Ympäristö
Metroasema: 200 m, Juna-asema: 500 m, Raitiovaunupysäkki: 100 m, Bussipysäkki: 100 m, Lentoasema: 19,2 km
Kulkuyhteydet
Valokuitu
Muuta
Vuokrattavana toimistotila 20,7 m² – Vapaana kompakti tila keskellä Helsingin runsaita palveluita. Tila soveltuu erinomaisesti esimerkiksi työ- tai vastaanottohuoneeksi. Keskeisen sijainnin ansiosta kiinteistö on helposti saavutettavissa niin metrolla, bussilla, ratikalla kuin myös junalla tai omalla autolla. Toimisto sijaitsee rauhallisen sisäpihan puolella, mutta kulku tilaan on kuitenkin suoraan Kaisaniemenkadun puolelta. Käynti toimitilaan on yhteiskäytävän varrelta.
Kulttuurihistoriallisesti merkittävä Mikonkatu 13 on vakiinnuttanut satavuotisen historiansa aikana paikkansa yhtenä ydinkeskustan tunnetuimmista maamerkeistä. Kiinteistö sijaitsee vain muutaman askeleen päässä Helsingin päärautatieasemasta sekä lähimmistä metro-, raitiovaunu- sekä bussipysäkeistä. Tässä kiinteistössä olet aidosti lähellä kaikkia ydinkeskustan ravintoloita, kahviloita ja muita palveluita.
Tämä kohde Helsingin ydinkeskustassa, vain muutaman askeleen päässä Rautatieasemasta ja keskellä maan kattavimpia palveluja, tarjoaa moderneja ja joustavia toimitiloja merkittävässä arvokiinteistössä.
Kulttuurihistoriallisesti merkittävä Mikonkatu 13 on vakiinnuttanut satavuotisen historiansa aikana paikkansa yhtenä ydinkeskustan tunnetuimmista maamerkeistä. Kiinteistö sijaitsee vain muutaman askeleen päässä Helsingin päärautatieasemasta sekä lähimmistä metro-, raitiovaunu- sekä bussipysäkeistä. Tässä kiinteistössä olet aidosti lähellä kaikkia ydinkeskustan ravintoloita, kahviloita ja muita palveluita.
Tämä kohde Helsingin ydinkeskustassa, vain muutaman askeleen päässä Rautatieasemasta ja keskellä maan kattavimpia palveluja, tarjoaa moderneja ja joustavia toimitiloja merkittävässä arvokiinteistössä.
Vapautuu
Kysy
Rakennusvuosi
1931
Kerros
7
Energiatehokkuusluokka
G2007
Ota yhteyttä
LähiTapiola Kiinteistövarainhoito Oy
Heli Jalonen
Vuokrauspäällikkö
Näytä puhelinnumero
040 823 3490
Pyydä lisätietoa
