Vuokrataan toimistotilat - Helsinki
Elimäenkatu 17-19, Vallila, 00510 Helsinki #10804417
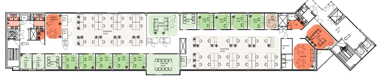
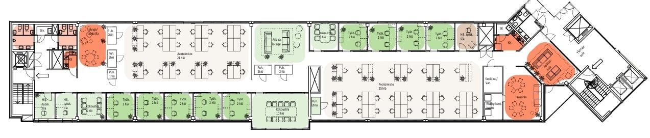
Nyt vapautumassa modernit ja teollisuushenkiset toimitilat Helsingin Vallilassa. Nämä toimitilat ovat hyväkuntoiset ja tilaratkaisuiltaan tehokkaat. Tilasta löytyy avotoimistoa sekä pienempiä työ- ja neuvotteluhuoneita. Lisäksi tiloissa on hyvät tauko- ja keittiötilat sekä wc:t.
Kiinteistön toimitilat ovat hyväkuntoisia ja tilaratkaisuiltaan tehokkaita. Talossa on kattavat kokous- ja saunatilat, auditorio sekä parkkitilaa peräti kolmellesadalle autolle. Talossa on lounasravintola, parvekkeet ja tavarahissi. Kiinteistöä uudistetaan parhaillaan, joten toimitiloja voidaan muokata asiakkaiden toiveiden mukaisesti. Palvelut paranevat pian vielä entisestään, sillä taloon on tulossa liikunta-alan yrityksiä.
Me Croisettella autamme teitä löytämään teille parhaat tilat! Olemme puolueettomia asiantuntijoita ja tunnemme toimitilamarkkinat, talot sekä tilat vankalla kokemuksella. Meillä on välityksessä kaikki toimitilat ja tiedämme niiden alustavat vuokratasot.
Tehtävämme on tehdä toimitilahaustanne onnistunut ja helppo. Saamme palkkiomme kiinteistönomistajalta, joten sinulle palvelumme on täysin maksuton.
Hissi
Croisette Real Estate Partner
Erottajankatu 5 A 6, 00130 Helsinki
Näytä puhelinnumero
+358 400 585 857
Croisette Vuokraus
Näytä puhelinnumero
+358400585857
