Vuokrataan toimistotilat - Vantaa
Pavintie 2, Hakkila, 01260 Vantaa #10804407
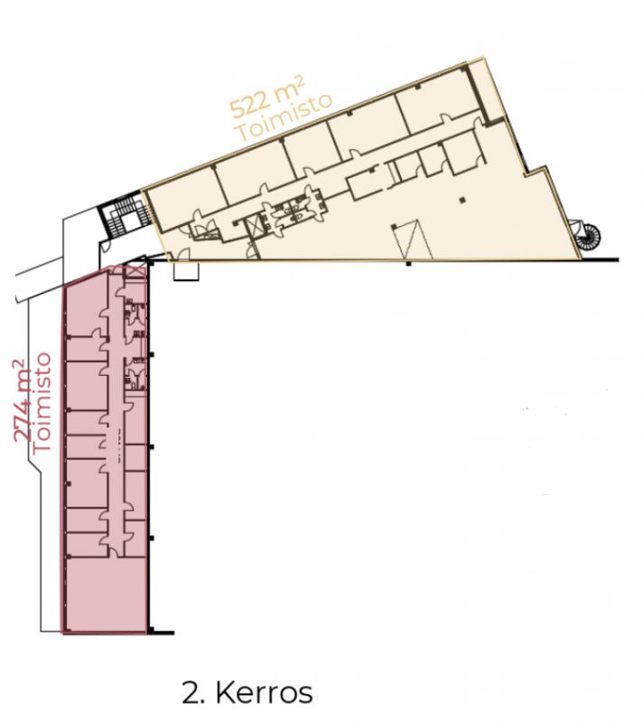
Vuokrattavana toisen kerroksen avaraa, siistiä toimistotilaa.
Osoite
Pavintie 2, 01260 Vantaa
Tilatyyppi
Toimistotilaa
796 m2
Kiinteistö
Vuokrattavana toisen kerroksen avaraa, siistiä toimistotilaa. Tila helposti muunneltavissa vuokralaisen liiketoiminnan tarpeisiin.
Sijainti
Hakkila, Vantaa
Pysäköinti
Omalla aidatulla pihalla.
Palvelut
Lähialueen palvelut.
Kulkuyhteydet
-Bussi
-Oma auto
-Oma auto
Vapautuu
Heti
Kerros
2
Energiatehokkuusluokka
Ei lain edellyttämää energiatodistusta
Näkyvällä paikalla
Ota yhteyttä
REALIUM OY LKV
Tammasaarenkatu 1, 00180 Helsinki
Vaihde:
Näytä puhelinnumero
010 326 346
Tuomo Mäkelä
tuomo.makela@realium.fi
p.
Näytä puhelinnumero
044 050 1158
Joel Keto
joel.keto@realium.fi
p.
Näytä puhelinnumero
045 317 0330
KAIKKI TILAVAIHTOEHDOT KERRALLA!
SOITA - MEILAA JA TILAA NÄYTTÖ!
Ilmainen palvelu tilanhakijoille.
Kartoitamme parhaat tilavaihtoehdot.
Kaikki kohteet eivät ole netissä.
Pyydä lisätietoa
