Vuokrataan toimistotilat - Espoo
Ruukinkuja 4, Kiviruukki, 02330 Espoo #10804336
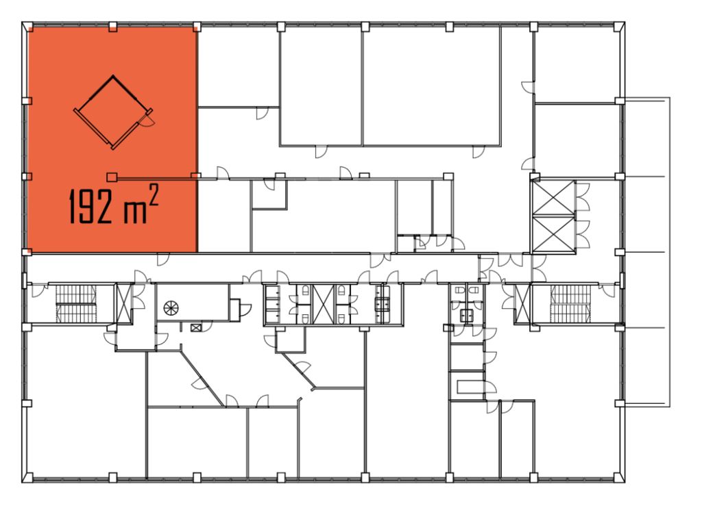
Toimistotilaa Espoon Kiviruukissa.
Tämä 192m² toimisto sijaitsee kiinteistön 2. kerroksessa. Tilassa on oma iso keittiö, ja käytävällä sijaitsevat wc:t ovat yhteiskäyttöiset viereisten tilojen kanssa. Kerrokseen on tavarahissiyhteys.
Espoon Kivenlahden teollisuusalueella sijaitsevassa toimitilakiinteistö on valmistunut 1980-luvulla. Kiinteistössä on toimistotilojen lisäksi varastotilaa ja tuotanto- ja teollisuustilaa. Kiinteistössä on kolme kerrosta ja kellarikerros, pihalla autopaikkoja sekä lastauslaituri, johon pääsee suurellakin ajoneuvolla. Rakennuksessa on hissiyhteys kerroksiin 1-3. Alueelle on hyvät kulkuyhteydet Länsiväylältä sekä Kehä III:lta.
Kysy lisää numerosta 044 723 4700 tai info@bref.fi. Palvelumme on tilanhakijoille ilmainen.
Hissi
Bureau Real Estate Finland Oy
Lars Sonckin kaari 16, 02600 Espoo
Näytä puhelinnumero
0447234700
Bureau Real Estate Finland Oy
https://www.bref.fi