Vuokrataan toimistotilat - Helsinki
Kiviaidankatu 2, Lauttasaari, 00210 Helsinki #10804176
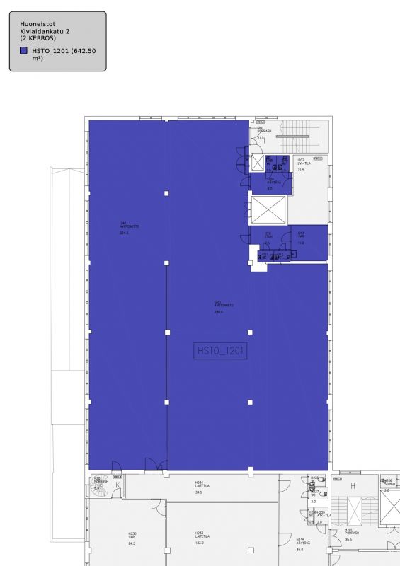
Entisessä pientuotantokiinteistössä 642 m² toimistotila
Osoite
Kiviaidankatu 2, 00210 Helsinki
Tilatyyppi
Toimistotilaa
642 m2
Pohjapiirros
Kiinteistö
Talon länsipäädyssä sijaitseva valoisa huoneisto, joka koostuu avotilasta ja työhuoneista.Tilaratkaisu on tarvittaessa jaettavissa kahden käyttäjän kesken. Tilaan on tavarahissiyhteys ja sen kautta kulku lastauslaiturille.
Kiviaidankatu on helposti saavutettavissa niin julkisilla kuin autollakin. Länsimetro tekee työmatkan sujuvaksi useasta eri suunnasta ja lähin asema löytyy alle kilometrin päästä kiinteistöstä. Kiinteistön lähelle kulkevat myös bussit metroasemalta. Rakennuksessa on päivittäistavarakauppa ja lähistöltä löytyy useita eri lounasravintoloita jokaiseen makuun.
Kiviaidankatu on helposti saavutettavissa niin julkisilla kuin autollakin. Länsimetro tekee työmatkan sujuvaksi useasta eri suunnasta ja lähin asema löytyy alle kilometrin päästä kiinteistöstä. Kiinteistön lähelle kulkevat myös bussit metroasemalta. Rakennuksessa on päivittäistavarakauppa ja lähistöltä löytyy useita eri lounasravintoloita jokaiseen makuun.
Kulkuyhteydet
Bussipysäkki - 100 m
Juna-asema - 4,8 km
Juna-asema - 4,8 km
Vapautuu
Heti
Kerros
2
Energiatehokkuusluokka
E
Hissi
Ota yhteyttä
ScanReal Oy LKV
Opus Business Park
Hitsaajankatu 24
00810 Helsinki
info@scanreal.fi
Puh:
Näytä puhelinnumero
020 730 8830
Sopivat toimitilat yhdellä otolla!
Kartoitamme toimitilatarpeesi ja etsimme yrityksellesi parhaiten sopivat vapaat toimitilat. Koska vuokranantajat maksavat palvelumme, on tämä yrityksellesi veloituksetonta.
OTA YHTEYTTÄ - SOVI NÄYTTÖ!
Kaikki kohteemme eivät ole netissä, kerro tilatarpeesi niin kartoitamme vaihtoehdot.
Palvelumme on tilanhakijalle ilmainen
Pyydä lisätietoa
