Vuokrataan toimistotilat - Helsinki
Kiviaidankatu 2, Lauttasaari, 00210 Helsinki #10804175
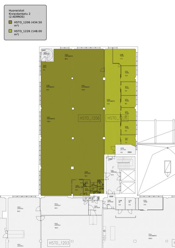
Entisessä pientuotantokiinteistössä 582 m² toimistotila
Osoite
Kiviaidankatu 2, 00210 Helsinki
Tilatyyppi
Toimistotilaa
582 m2
Pohjapiirros
Kiinteistö
Avara ja valoisa teollisuushenkinen toimistotila Lauttasaaresta. Tämä toimitila on nykyisellään raakapinnoilla oleva, vuokralaiselle remontoitava tila, johon mm. uusitaan wc:t. Nykymuodossaan tila sisältää ison avotyötila ja työhuoneita. Tilaratkaisua voidaan muokata tulevan käyttäjän toiveiden mukaan.
Kiviaidankatu on helposti saavutettavissa niin julkisilla kuin autollakin. Länsimetro tekee työmatkan sujuvaksi useasta eri suunnasta ja lähin asema löytyy alle kilometrin päästä kiinteistöstä. Kiinteistön lähelle kulkevat myös bussit metroasemalta. Rakennuksessa on päivittäistavarakauppa ja lähistöltä löytyy useita eri lounasravintoloita jokaiseen makuun.
Kiviaidankatu on helposti saavutettavissa niin julkisilla kuin autollakin. Länsimetro tekee työmatkan sujuvaksi useasta eri suunnasta ja lähin asema löytyy alle kilometrin päästä kiinteistöstä. Kiinteistön lähelle kulkevat myös bussit metroasemalta. Rakennuksessa on päivittäistavarakauppa ja lähistöltä löytyy useita eri lounasravintoloita jokaiseen makuun.
Kulkuyhteydet
Bussipysäkki - 100 m
Juna-asema - 4,8 km
Juna-asema - 4,8 km
Vapautuu
Heti
Kerros
2
Energiatehokkuusluokka
E
Hissi
Ota yhteyttä
ScanReal Oy LKV
Opus Business Park
Hitsaajankatu 24
00810 Helsinki
info@scanreal.fi
Puh:
Näytä puhelinnumero
020 730 8830
Sopivat toimitilat yhdellä otolla!
Kartoitamme toimitilatarpeesi ja etsimme yrityksellesi parhaiten sopivat vapaat toimitilat. Koska vuokranantajat maksavat palvelumme, on tämä yrityksellesi veloituksetonta.
OTA YHTEYTTÄ - SOVI NÄYTTÖ!
Kaikki kohteemme eivät ole netissä, kerro tilatarpeesi niin kartoitamme vaihtoehdot.
Palvelumme on tilanhakijalle ilmainen
Pyydä lisätietoa
