Vuokrataan toimistotilat - Joensuu
Yläsatamakatu 9, Keskusta, 80100 Joensuu #10804106
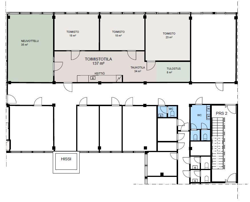
Toimisto
Osoite
Yläsatamakatu 9, 80100 Joensuu
Tilatyyppi
Toimistotilaa
137 m2
Kiinteistö
Joensuun keskustassa saneerattua toimistotilaa n. 137 m²
Keskellä Joensuuta on vuokrattavana perustoimistotilaa Yläsatamakatu 9 osoitteessa.
Ylimmässä kerroksessa on erittäin siisti ja toimiva kokonaisuus muuttovalmiina.
Uusitulla sisäänkäynnillä ja hissillä mennään ylös ja tilakokonaisuus avautuu valoisana.
Koneellinen ilmanvaihto, viilennys, led-valaistus ja tasokkaat pintamateriaalit ovat valmiina.
Vuokralainen voi halutessaan sisustaa tilakokonaisuuden mieleisekseen.
Kiinteistö ja sijainti
Kiinteistöä on saneerattu ja päivitetty tämän hetken tilavaatimuksiin ja työ rakennuksessa jatkuu edelleen. Kiinteistön ylläpito on ammattimaista ja vuokralaisen toiveita kuunnellaan herkällä korvalla - tilat ovat muunneltavissa ja säädettävissä tilanteen niin vaatiessa.
Kiinteistölle on helppo tulla julkisilla, polkupyörällä tai suoraan autolla takapihalle parkkiruutuun.
Autohalli on alakerrassa ja sinne on turvallista parkkeerata joko auto tai polkupyörät.
Vuokraaminen on tehty vaivattomaksi ja mahdolliset lisä- ja tai muutostyöt onnistuvat suitsait vikkelään.
Keskusta-alueen palvelut ovat muutaman minuutin päässä kiinteistöltä.
Valomainoiksille, logoteippauksille on julkisivulla omat paikkansa käytettävissä.
Mikäli kiinnostuit saneeratuista ja terveistä toimistotiloista, niin ota yhteyttä!
Keskellä Joensuuta on vuokrattavana perustoimistotilaa Yläsatamakatu 9 osoitteessa.
Ylimmässä kerroksessa on erittäin siisti ja toimiva kokonaisuus muuttovalmiina.
Uusitulla sisäänkäynnillä ja hissillä mennään ylös ja tilakokonaisuus avautuu valoisana.
Koneellinen ilmanvaihto, viilennys, led-valaistus ja tasokkaat pintamateriaalit ovat valmiina.
Vuokralainen voi halutessaan sisustaa tilakokonaisuuden mieleisekseen.
Kiinteistö ja sijainti
Kiinteistöä on saneerattu ja päivitetty tämän hetken tilavaatimuksiin ja työ rakennuksessa jatkuu edelleen. Kiinteistön ylläpito on ammattimaista ja vuokralaisen toiveita kuunnellaan herkällä korvalla - tilat ovat muunneltavissa ja säädettävissä tilanteen niin vaatiessa.
Kiinteistölle on helppo tulla julkisilla, polkupyörällä tai suoraan autolla takapihalle parkkiruutuun.
Autohalli on alakerrassa ja sinne on turvallista parkkeerata joko auto tai polkupyörät.
Vuokraaminen on tehty vaivattomaksi ja mahdolliset lisä- ja tai muutostyöt onnistuvat suitsait vikkelään.
Keskusta-alueen palvelut ovat muutaman minuutin päässä kiinteistöltä.
Valomainoiksille, logoteippauksille on julkisivulla omat paikkansa käytettävissä.
Mikäli kiinnostuit saneeratuista ja terveistä toimistotiloista, niin ota yhteyttä!
Vapautuu
Kysy
Kerros
Ylin kerros
Ota yhteyttä
LogisTila Oy
Ankkuritie 1, 70460 KUOPIO
Timo Puustinen
Näytä puhelinnumero
0400 33 00 30
Pyydä lisätietoa
