Vuokrataan toimistotilat - Helsinki
Kiviaidankatu 2, Lauttasaari, 00210 Helsinki #10804069
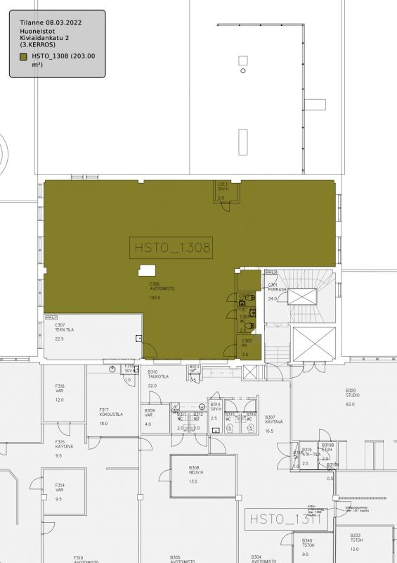
Entisessä pientuotantokiinteistössä 203 m² toimistotila
Osoite
Kiviaidankatu 2, 00210 Helsinki
Tilatyyppi
Toimistotilaa
203 m2
Pohjapiirros
Kiinteistö
Noin 10-15 hengen organisaatiolle soveltuva tilankäytöltään tehokas avotoimisto. Huoneisto remontoidaan täysin ennen sen vuokraamista. Tulevan käyttäjän on mahdollista vaikuttaa mm. pintoihin, väreihin ja tilaratkaisuihin. Tässä on hyvä mahdollisuus saada käyttöön juuri oman yrityksesi näköinen toimitila.
Kiviaidankatu on helposti saavutettavissa niin julkisilla kuin autollakin. Länsimetro tekee työmatkan sujuvaksi useasta eri suunnasta ja lähin asema löytyy alle kilometrin päästä kiinteistöstä. Kiinteistön lähelle kulkevat myös bussit metroasemalta. Rakennuksessa on päivittäistavarakauppa ja lähistöltä löytyy useita eri lounasravintoloita jokaiseen makuun.
Kiviaidankatu on helposti saavutettavissa niin julkisilla kuin autollakin. Länsimetro tekee työmatkan sujuvaksi useasta eri suunnasta ja lähin asema löytyy alle kilometrin päästä kiinteistöstä. Kiinteistön lähelle kulkevat myös bussit metroasemalta. Rakennuksessa on päivittäistavarakauppa ja lähistöltä löytyy useita eri lounasravintoloita jokaiseen makuun.
Kulkuyhteydet
Bussipysäkki - 100 m
Juna-asema - 4,8 km
Juna-asema - 4,8 km
Vapautuu
Heti
Kerros
3
Energiatehokkuusluokka
Ei lain edellyttämää energiatodistusta
Hissi
Ota yhteyttä
ScanReal Oy LKV
Opus Business Park
Hitsaajankatu 24
00810 Helsinki
info@scanreal.fi
Puh:
Näytä puhelinnumero
020 730 8830
Sopivat toimitilat yhdellä otolla!
Kartoitamme toimitilatarpeesi ja etsimme yrityksellesi parhaiten sopivat vapaat toimitilat. Koska vuokranantajat maksavat palvelumme, on tämä yrityksellesi veloituksetonta.
OTA YHTEYTTÄ - SOVI NÄYTTÖ!
Kaikki kohteemme eivät ole netissä, kerro tilatarpeesi niin kartoitamme vaihtoehdot.
Palvelumme on tilanhakijalle ilmainen
Pyydä lisätietoa
