Vuokrataan toimistotilat - Helsinki
Lintulahdenkuja 10, Suvilahti, 00500 Helsinki #10803995
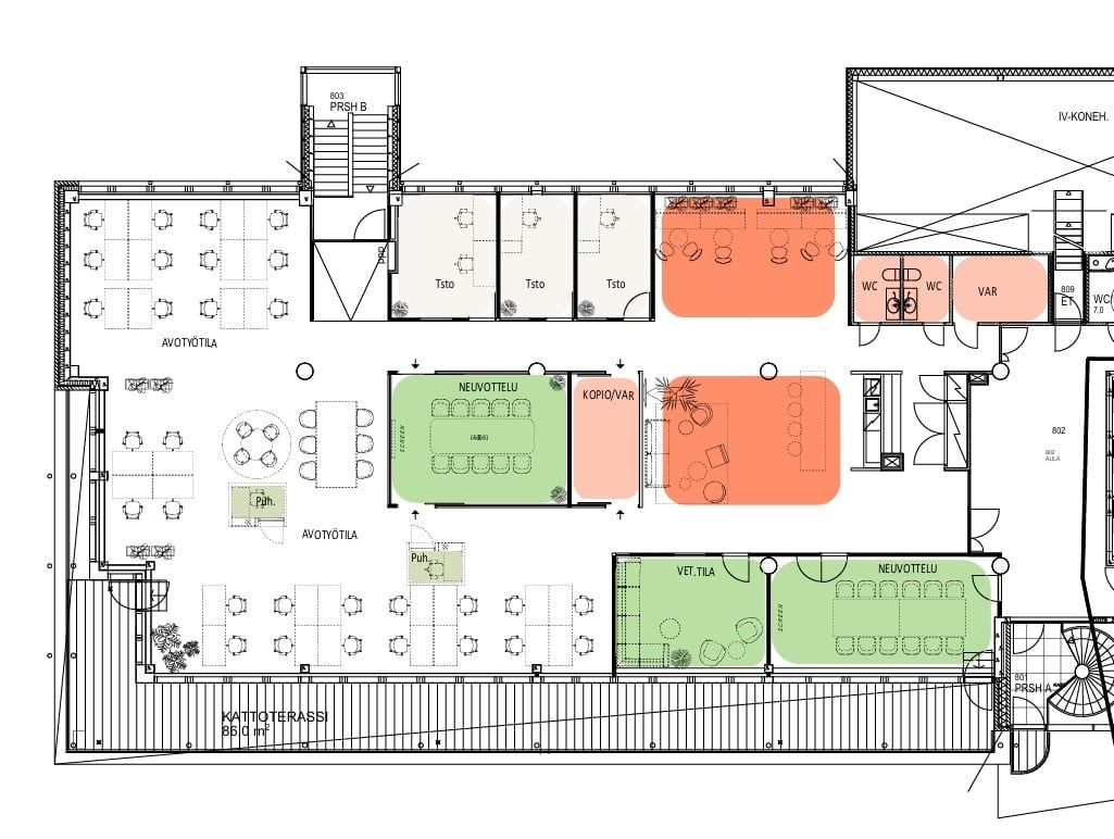
Vuokrattavissa ylimmän kerroksen toimistotila omalla terassilla ja upeilla näköaloilla. Tästä modernista tilasta löytyy joustava pohjaratkaisu, mihin voit valita pintamateriaalit mielesi mukaan. Toimistosta löytyy avotilaa ja pienempiä työhuoneita sekä keittiö ja wc-tilat. Tilan voi yhdistää alemman kerroksen toimistoon sisäportaalla, jolloin saat jopa 1148,5 m² toimistotilaa.
Osoite
Lintulahdenkuja 10, 00500 Helsinki
Tilatyyppi
Toimistotilaa
534 m2
Pohjapiirros
Sijainti
Hakaniemen ja Kalasataman välissä sijaitseva Suvilahti on dynaaminen tapahtuma- ja kohtaamispaikka teollisuusmiljöössä.
Vapautuu
Vapautumassa
Rakennusvuosi
2009
Energiatehokkuusluokka
Ei lain edellyttämää energiatodistusta
Hissi
Ota yhteyttä
Croisette Real Estate Partner
Erottajankatu 5 A 6, 00130 Helsinki
Näytä puhelinnumero
+358 400 585 857
Croisette Vuokraus
Näytä puhelinnumero
+358400585857
Pyydä lisätietoa
