Vuokrataan toimistotilat - Helsinki
Porkkalankatu 7, Ruoholahti, 00180 Helsinki #10803872
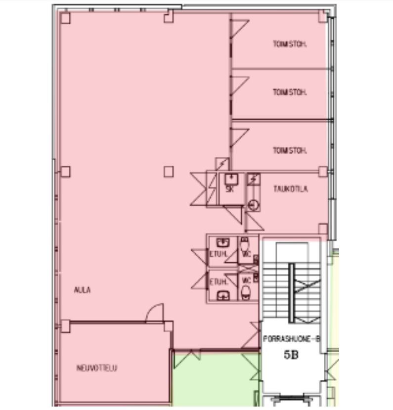
Vuokrattavana valoisaa ja tehokasta toimistotilaa.
Osoite
Porkkalankatu 7, 00180 Helsinki
Tilatyyppi
Toimistotilaa
190 m2
Kiinteistö
Vuokrattavana valoisaa ja tehokasta toimistotilaa. toimistossa on kolme toimistohuonetta ja yksi neuvottelutila. Tilaan tehdään remontit vuokralaisen toiveiden mukaan.
Sijainti
Ruoholahti, Helsinki
Pysäköinti
Pysäköintihalli, piha, kauppakeskuksen parkki.
Palvelut
Ruoholahden palvelut
Kulkuyhteydet
Hyvät kulkuyhteydet
Vapautuu
Heti
Kerros
5
Energiatehokkuusluokka
F2007
Näkyvällä paikalla
Hissi
Ota yhteyttä
REALIUM OY LKV
Tammasaarenkatu 1, 00180 Helsinki
Vaihde:
Näytä puhelinnumero
010 326 346
Tuomo Mäkelä
tuomo.makela@realium.fi
p.
Näytä puhelinnumero
044 050 1158
Joel Keto
joel.keto@realium.fi
p.
Näytä puhelinnumero
045 317 0330
KAIKKI TILAVAIHTOEHDOT KERRALLA!
SOITA - MEILAA JA TILAA NÄYTTÖ!
Ilmainen palvelu tilanhakijoille.
Kartoitamme parhaat tilavaihtoehdot.
Kaikki kohteet eivät ole netissä.
Pyydä lisätietoa
