Vuokrataan toimistotilat, varastotilat - Vantaa
Pavintie 2, Hakkila, 01260 Vantaa #10803793
Korkea 2275 m² varasto-/tuotantohallitila ja 796 m² toimisto Hakkilassa
Osoite
Pavintie 2, 01260 Vantaa
Tilatyyppi
Toimistotilaa
796 m2
Varastotilaa
2275 m2
Yhteensä
3071 m2
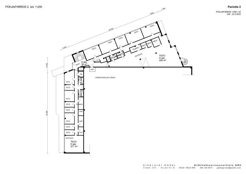
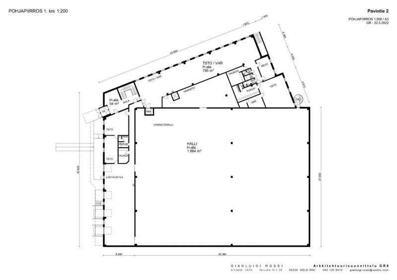
Pohjapiirros
Kiinteistö
2275 m² varastokokonaisuus sijaitsee kiinteistön 1. kerroksessa. Varastossa on kaksi lastaustaskua ja lastauslaituri.
796 m² siisti ja valoisa toimistotila sijaitsee kiinteistön 2. kerroksessa. Tila on tällä hetkellä pääosin huoneellista, mutta se on muokattavissa myös avotilaksi.
Ilmoituksen kuvat ovat yleiskuvia kiinteistön eri tiloista.
Pavintie 2 on varasto/tuotantokiinteistö, joka sijaitsee Vantaan Hakkilassa. Erinomainen sijainti takaa hyvät kulkuyhteydet kaikkialle pääkaupunkiseudulla. Kiinteistössä on rampillinen nosto-ovi, nostimellinen nosto-ovi sekä kaksi lastaustaskua, lämmin lastauslaituri ja toimiva sisälogistiikka varasto-/tuotantoiloihin. Kiinteistöllä on myös oma aidattu piha, jossa on 32 autopaikkaa.
796 m² siisti ja valoisa toimistotila sijaitsee kiinteistön 2. kerroksessa. Tila on tällä hetkellä pääosin huoneellista, mutta se on muokattavissa myös avotilaksi.
Ilmoituksen kuvat ovat yleiskuvia kiinteistön eri tiloista.
Pavintie 2 on varasto/tuotantokiinteistö, joka sijaitsee Vantaan Hakkilassa. Erinomainen sijainti takaa hyvät kulkuyhteydet kaikkialle pääkaupunkiseudulla. Kiinteistössä on rampillinen nosto-ovi, nostimellinen nosto-ovi sekä kaksi lastaustaskua, lämmin lastauslaituri ja toimiva sisälogistiikka varasto-/tuotantoiloihin. Kiinteistöllä on myös oma aidattu piha, jossa on 32 autopaikkaa.
Vapautuu
Heti
Kerros
1-2
Energiatehokkuusluokka
Ei lain edellyttämää energiatodistusta
Ota yhteyttä
ScanReal Oy LKV
Opus Business Park
Hitsaajankatu 24
00810 Helsinki
info@scanreal.fi
Puh:
Näytä puhelinnumero
020 730 8830
Sopivat toimitilat yhdellä otolla!
Kartoitamme toimitilatarpeesi ja etsimme yrityksellesi parhaiten sopivat vapaat toimitilat. Koska vuokranantajat maksavat palvelumme, on tämä yrityksellesi veloituksetonta.
Palvelumme on tilanhakijalle ilmainen
Pyydä lisätietoa
