Vuokrataan toimistotilat - Helsinki
Mikonkatu 15, Kluuvi, 00100 Helsinki #10803622
Tunnelmallinen ja tehokas toimistotila omalla terassilla.
Osoite
Mikonkatu 15, 00100 Helsinki
Tilatyyppi
Toimistotilaa
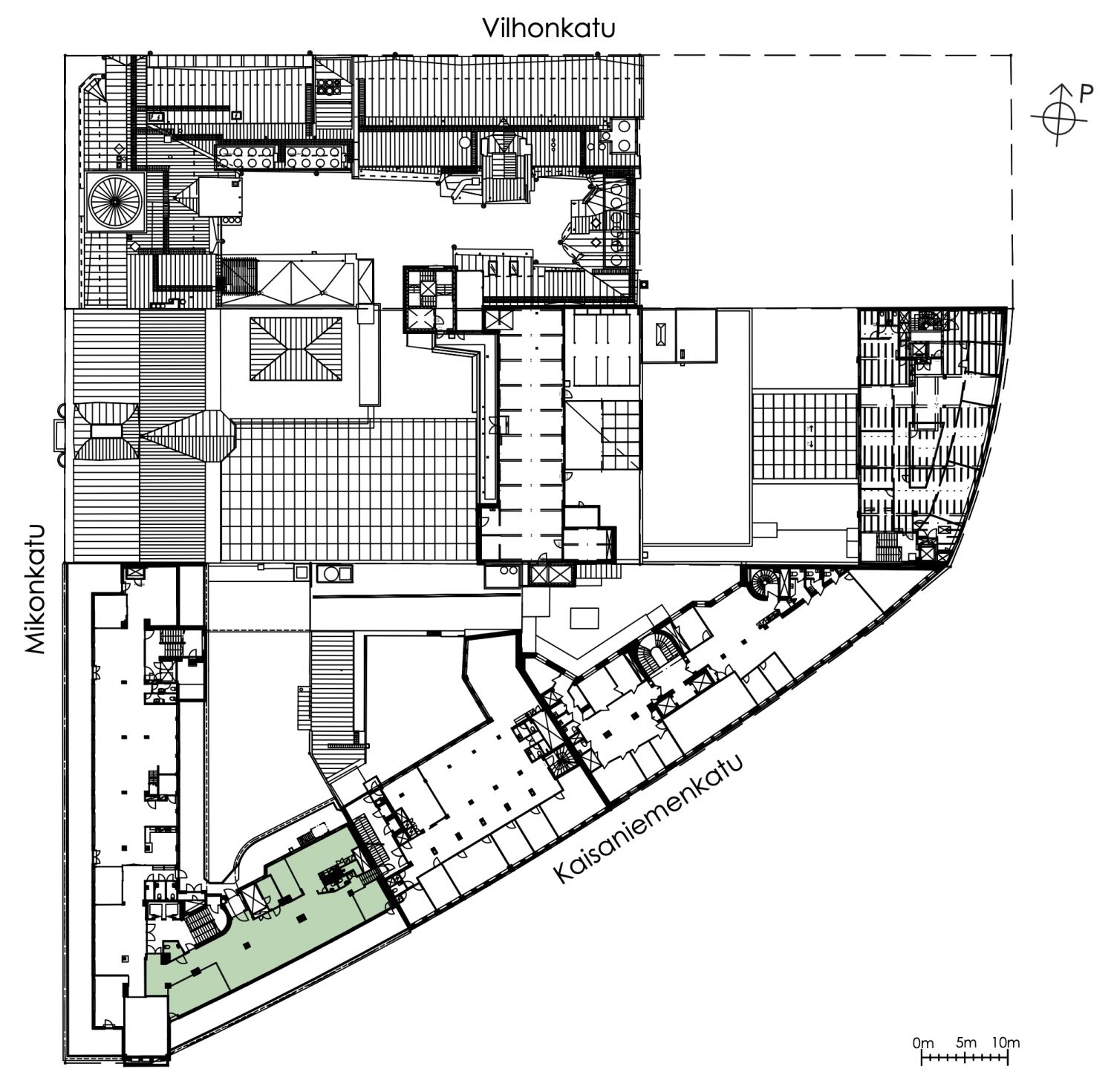
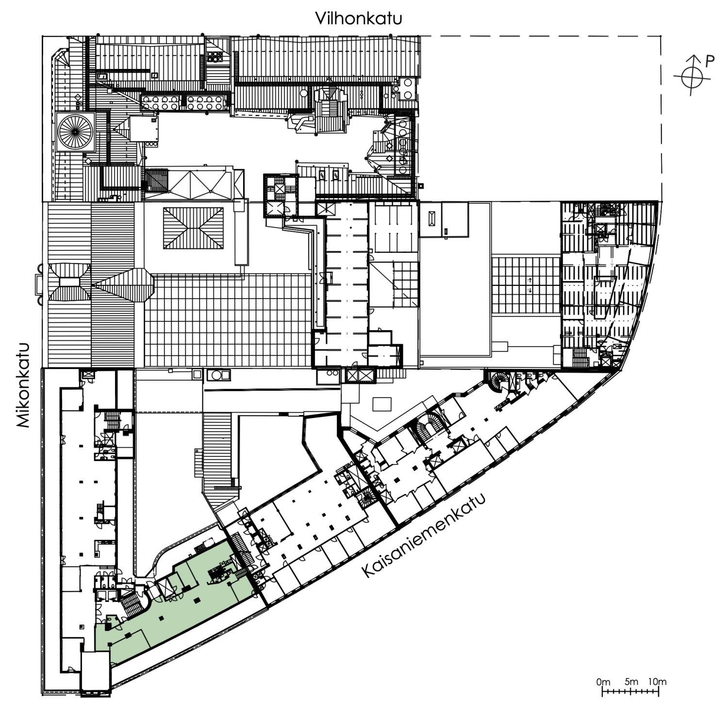
232 m2
Pohjapiirros
Kiinteistö
Moderni toimisto- ja liikekiinteistö keskeistä sijaintia ja monipuolista palvelutarjontaa arvostaville yrityksille.
Mikonkatu 15 on yksi Helsingin ydinkeskustan historiallisesti merkittävistä kiinteistöistä. Kiinteistössä sijaitsi alun perin kolmikerroksinen kertaustyylinen kivitalo, joka rakennettiin noin vuonna 1860. Tämä rakennus tunnettiin nimellä Resvoyn talo, ja siellä asui muun muassa Aino Järnefelt (avioliiton kautta Sibelius) perheineen 1880-luvulla. Vuonna 1941 paikalle rakennettiin myöhemmin Nokiana tunnetuksi tulleen Suomen Gummitehtaan pääkonttori.
Nykyään Mikonlinna on moderni toimisto- ja liikekiinteistö Fennia-korttelissa, Helsingin Rautatientorin ääressä. Mikonkadun suosittu alue Helsingin sydämessä tarjoaa upeat puitteet keskeistä sijaintia ja ympäristön monipuolista palvelutarjontaa arvostaville yrityksille.
Mikonlinna on helposti ja nopeasti saavutettavissa kaikilla julkisen liikenteen välineillä koko pääkaupunkiseudun alueelta. Keskeinen sijainti takaa myös sen, että kaikki keskustan kaupalliset ja yrityspalvelut ovat lyhyen kävelymatkan etäisyydellä ja asiakasvirrat alueella ovat vertaansa vailla.
Yhdeksänkerroksisen kiinteistön ylimmistä kerroksista on upeat näkymät Helsingin keskustan yli. Ylemmissä kerroksissa on erikokoisia toimistotiloja, joissa on viihtyisyyttä ja valoisuutta luovat isot ikkunat. Katutasossa on liiketiloja. Sisätilat ovat helposti muunneltavissa yrityksen tarpeiden mukaan.
Kaikille Fennia-korttelin kiinteistöille on myönnetty BREEAM In-Use Excellent -tason ympäristösertifikaatti ja koko kortteli toimii 100 % päästöttömällä energialla, kuten tuulisähköllä ja uusiutuvalla kaukolämmöllä.
Mikonkatu 15 on yksi Helsingin ydinkeskustan historiallisesti merkittävistä kiinteistöistä. Kiinteistössä sijaitsi alun perin kolmikerroksinen kertaustyylinen kivitalo, joka rakennettiin noin vuonna 1860. Tämä rakennus tunnettiin nimellä Resvoyn talo, ja siellä asui muun muassa Aino Järnefelt (avioliiton kautta Sibelius) perheineen 1880-luvulla. Vuonna 1941 paikalle rakennettiin myöhemmin Nokiana tunnetuksi tulleen Suomen Gummitehtaan pääkonttori.
Nykyään Mikonlinna on moderni toimisto- ja liikekiinteistö Fennia-korttelissa, Helsingin Rautatientorin ääressä. Mikonkadun suosittu alue Helsingin sydämessä tarjoaa upeat puitteet keskeistä sijaintia ja ympäristön monipuolista palvelutarjontaa arvostaville yrityksille.
Mikonlinna on helposti ja nopeasti saavutettavissa kaikilla julkisen liikenteen välineillä koko pääkaupunkiseudun alueelta. Keskeinen sijainti takaa myös sen, että kaikki keskustan kaupalliset ja yrityspalvelut ovat lyhyen kävelymatkan etäisyydellä ja asiakasvirrat alueella ovat vertaansa vailla.
Yhdeksänkerroksisen kiinteistön ylimmistä kerroksista on upeat näkymät Helsingin keskustan yli. Ylemmissä kerroksissa on erikokoisia toimistotiloja, joissa on viihtyisyyttä ja valoisuutta luovat isot ikkunat. Katutasossa on liiketiloja. Sisätilat ovat helposti muunneltavissa yrityksen tarpeiden mukaan.
Kaikille Fennia-korttelin kiinteistöille on myönnetty BREEAM In-Use Excellent -tason ympäristösertifikaatti ja koko kortteli toimii 100 % päästöttömällä energialla, kuten tuulisähköllä ja uusiutuvalla kaukolämmöllä.
Sijainti
Kiinteistön vieressä sijaitsevat Rautatieasema ja Rautatientorin linja-autoasema takaavat erinomaisen julkisen liikenteen saavutettavuuden, jota täydentää korttelin alapuolella sijaitseva Helsingin yliopiston metroasema.
Pysäköinti
Autopaikat P-Eliel ja P-Kluuvi
Palvelut
Fennia-korttelissa on mittava määrä ravintoloita ja muita viihdepalveluita. Keskeinen sijainti ydinkeskustassa takaa sen, että kaikki kaupalliset ja yrityspalvelut sijaitsevat lyhyen kävelymatkan etäisyydellä. Työmatkapyöräilijöita varten löytyy pyörävarasto sekä sosiaalitilat.
Kulkuyhteydet
Lähimmälle bussipysäkille 100 m
Lähimmälle juna-asemalle 100 m
Lähimmälle metroasemalle 100 m
Lähimmälle raitiovaunupysäkille 200 m
Lentokentälle 30 min
Lähimmälle juna-asemalle 100 m
Lähimmälle metroasemalle 100 m
Lähimmälle raitiovaunupysäkille 200 m
Lentokentälle 30 min
Vapautuu
Kysy
Rakennusvuosi
1940
Kerros
8
Energiatehokkuusluokka
C2018 (toimistot) B2018 (liiketilat)
Ympäristöluokitus
BREEAM In-Use Excellent,GRESB Global Sector Leader 2025
Ota yhteyttä
Sponda Oy
Yrjönkatu 29C, 00100 Helsinki
Näytä puhelinnumero
020 43131
Laura Toponen
Senior Leasing Manager
Näytä puhelinnumero
+35850 413 4223
Sponda Oy
https://www.sponda.fiPyydä lisätietoa
