Vuokrataan toimistotilat - Helsinki
Lapinlahdenkatu 1, Kamppi, Helsinki #10803510
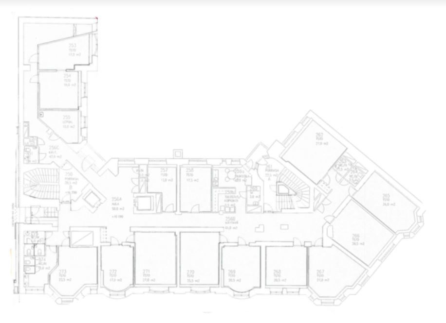
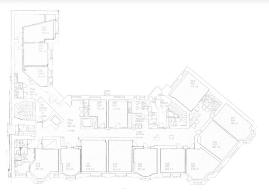
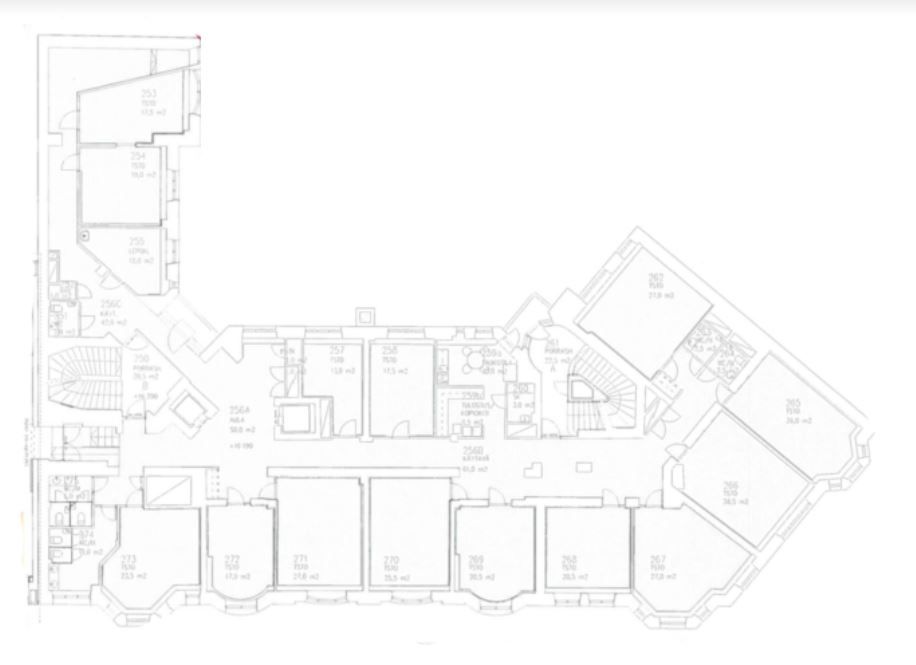
Vuokrataan siisti toimistotila, joka koostuu erikokoisista työhuoneista, neuvotteluhuoneesta ja taukotilasta.
Tyylikäs pääkonttoritason kiinteistö, jonka tiloissa korkeat huoneet ja moderni jäähdytys. Kiinteistö on peruskorjattu vuonna 2000. Sisääntuloaulassa on vahtimestarin piste. Ullakkokerroksessa edustustila, kokoustilat sekä auditorio n. 60 henkilölle.
LISÄTIETOJA numerosta 020 7290 710. Lisää kohteita osoitteessa www.premises.fi.
Kohteella ei ole lain edellyttämää energiatodistusta tai energialuokka ei tiedossa.Kerros: 2
Osoite
Lapinlahdenkatu 1, Helsinki
Tilatyyppi
Toimistotilaa
539 m2
Ota yhteyttä
CRE PREMISES
Puh. Näytä puhelinnumero 020 7290 710
Vantaankoskentie 14
01670 VANTAA
Pyydä lisätietoa
