Vuokrataan toimistotilat - Helsinki
Leppäsuonkatu 9, Keskusta, 00100 Helsinki #10803447
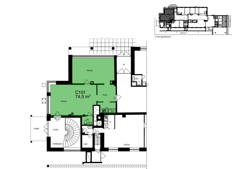
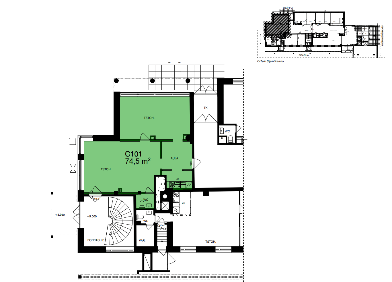
Pohjakerroksen 74,5 m² pieni toimisto Domus Academicasta.
Osoite
Leppäsuonkatu 9, 00100 Helsinki
Tilatyyppi
Toimistotilaa
74,5 m2
Pohjapiirros
Kiinteistö
Vuokrattavissa oleva tila on Domus Academican pohjakerroksessa.
Vuosina 1952 ja 1968 valmistunut Domus Academica eli tuttavallisemmin Domma koostuu kahdesta vuokra-asuntoja tarjoavasta kiinteistöstä hyvien kulkuyhteyksien varrella Kampissa. Asuntojen lisäksi Domus Academicalla sijaistee myös ravintola-, osakunta- ja toimistotiloja. Kiinteistöstä on maanalainen yhteys viereiseen Domus Gaudiumiin sekä parkkihalliin.
Kiinteistössä on lounasravintola ja catering-palvelu.
Talon parkkihallista on vuokrattavissa runsaasti autopaikkoja.
Vuosina 1952 ja 1968 valmistunut Domus Academica eli tuttavallisemmin Domma koostuu kahdesta vuokra-asuntoja tarjoavasta kiinteistöstä hyvien kulkuyhteyksien varrella Kampissa. Asuntojen lisäksi Domus Academicalla sijaistee myös ravintola-, osakunta- ja toimistotiloja. Kiinteistöstä on maanalainen yhteys viereiseen Domus Gaudiumiin sekä parkkihalliin.
Kiinteistössä on lounasravintola ja catering-palvelu.
Talon parkkihallista on vuokrattavissa runsaasti autopaikkoja.
Vapautuu
Heti
Rakennusvuosi
2008
Kerros
1
Energiatehokkuusluokka
Ei lain edellyttämää energiatodistusta
Näkyvällä paikalla
Ota yhteyttä
ScanReal Oy LKV
Opus Business Park
Hitsaajankatu 24
00810 Helsinki
info@scanreal.fi
Puh:
Näytä puhelinnumero
020 730 8830
Sopivat toimitilat yhdellä otolla!
Kartoitamme toimitilatarpeesi ja etsimme yrityksellesi parhaiten sopivat vapaat toimitilat. Koska vuokranantajat maksavat palvelumme, on tämä yrityksellesi veloituksetonta.
OTA YHTEYTTÄ - SOVI NÄYTTÖ!
Kaikki kohteemme eivät ole netissä, kerro tilatarpeesi niin kartoitamme vaihtoehdot.
Palvelumme on tilanhakijalle ilmainen
Pyydä lisätietoa
