Vuokrataan liiketilat - Helsinki
Siltasaarenkatu 16, Hakaniemi, 00530 Helsinki #10803366
Tyylikäs liiketila, erinomaisella sijainnilla Hakaniemessä. Sisäänkäynti metrokäytävässä.
Osoite
Siltasaarenkatu 16, 00530 Helsinki
Tilatyyppi
Liiketilaa
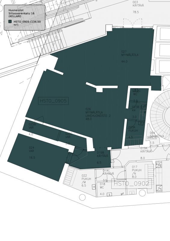
134,5 m2
Pohjapiirros
Kiinteistö
Liiketila metroon johtavan käytävän varrella, talon pohjakerroksesta. Hyvä liikepaikka metron tuomia asiakasvirtoja hyödyntämään pystyvälle yritykselle.
Vapautuu
Heti
Kerros
-1
Energiatehokkuusluokka
E
Katutasossa
Näkyvällä paikalla
Hissi
Ota yhteyttä
ScanReal Oy LKV
Opus Business Park
Hitsaajankatu 24
00810 Helsinki
info@scanreal.fi
Puh:
Näytä puhelinnumero
020 730 8830
Sopivat toimitilat yhdellä otolla!
Kartoitamme toimitilatarpeesi ja etsimme yrityksellesi parhaiten sopivat vapaat toimitilat. Koska vuokranantajat maksavat palvelumme, on tämä yrityksellesi veloituksetonta.
OTA YHTEYTTÄ - SOVI NÄYTTÖ!
Kaikki kohteemme eivät ole netissä, kerro tilatarpeesi niin kartoitamme vaihtoehdot.
Palvelumme on tilanhakijalle ilmainen
Pyydä lisätietoa
